All
專業作品
學生作品
參訪旅記
見學 黃俊銘教授
人物
讀書會
第1回 楊瑞禎建築師紀念設計獎
第2回 楊瑞禎建築師紀念設計獎
建材產品
展覽+新聞
2018 銘傳建築系畢業設計展
建築讀書會-廣州W
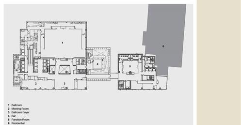
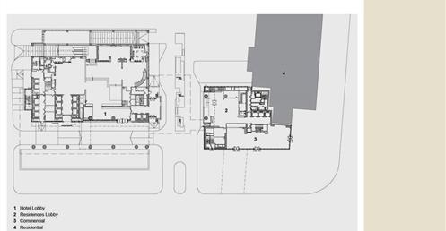
2013 中國廣州 W Hotel Guangzhou by Rocco Design Architects, Yabu Design, A.N.D.
→ 中國第一間W Hotel;建築物量體堆疊、脫開, 形成空間上的變化的活潑趣味;室內酒店設施空間挑高、材料跟顏色不停變化;地理位置-兼收並蓄、酒店設施-活力青春、客房設施-傳統創新;
專業作品
學生作品
參訪旅記
見學 黃俊銘教授
人物
讀書會
第1回 楊瑞禎建築師紀念設計獎
第2回 楊瑞禎建築師紀念設計獎
建材產品
展覽+新聞
2018 銘傳建築系畢業設計展