All
專業作品
學生作品
參訪旅記
見學 黃俊銘教授
人物
讀書會
第1回 楊瑞禎建築師紀念設計獎
第2回 楊瑞禎建築師紀念設計獎
建材產品
展覽+新聞
2018 銘傳建築系畢業設計展
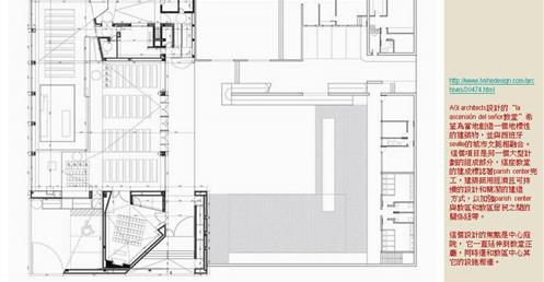
建築讀書會-西班牙教堂La Ascensión
建築讀書會-西班牙教堂
La Ascensión
專業作品
學生作品
參訪旅記
見學 黃俊銘教授
人物
讀書會
第1回 楊瑞禎建築師紀念設計獎
第2回 楊瑞禎建築師紀念設計獎
建材產品
展覽+新聞
2018 銘傳建築系畢業設計展