All
專業作品
學生作品
參訪旅記
見學 黃俊銘教授
人物
讀書會
第1回 楊瑞禎建築師紀念設計獎
第2回 楊瑞禎建築師紀念設計獎
建材產品
展覽+新聞
2018 銘傳建築系畢業設計展
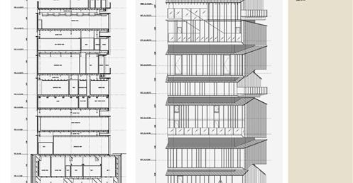
2012 東京淺草文化觀光中心 Asakusa Culture and Tourist Information Center by 隈研吾
2012
東京淺草文化觀光中心
Asakusa Culture and Tourist Information Center
by 隈研吾
→每坪造價約 NTD55萬
專業作品
學生作品
參訪旅記
見學 黃俊銘教授
人物
讀書會
第1回 楊瑞禎建築師紀念設計獎
第2回 楊瑞禎建築師紀念設計獎
建材產品
展覽+新聞
2018 銘傳建築系畢業設計展