All
專業作品
學生作品
參訪旅記
見學 黃俊銘教授
人物
讀書會
第1回 楊瑞禎建築師紀念設計獎
第2回 楊瑞禎建築師紀念設計獎
建材產品
展覽+新聞
2018 銘傳建築系畢業設計展
Community parent-child center
Community parent-child center
2017 Spring
Student: Chu Yu
2
nd
Studio work
NTUST Department of Architecture
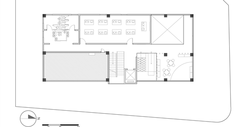
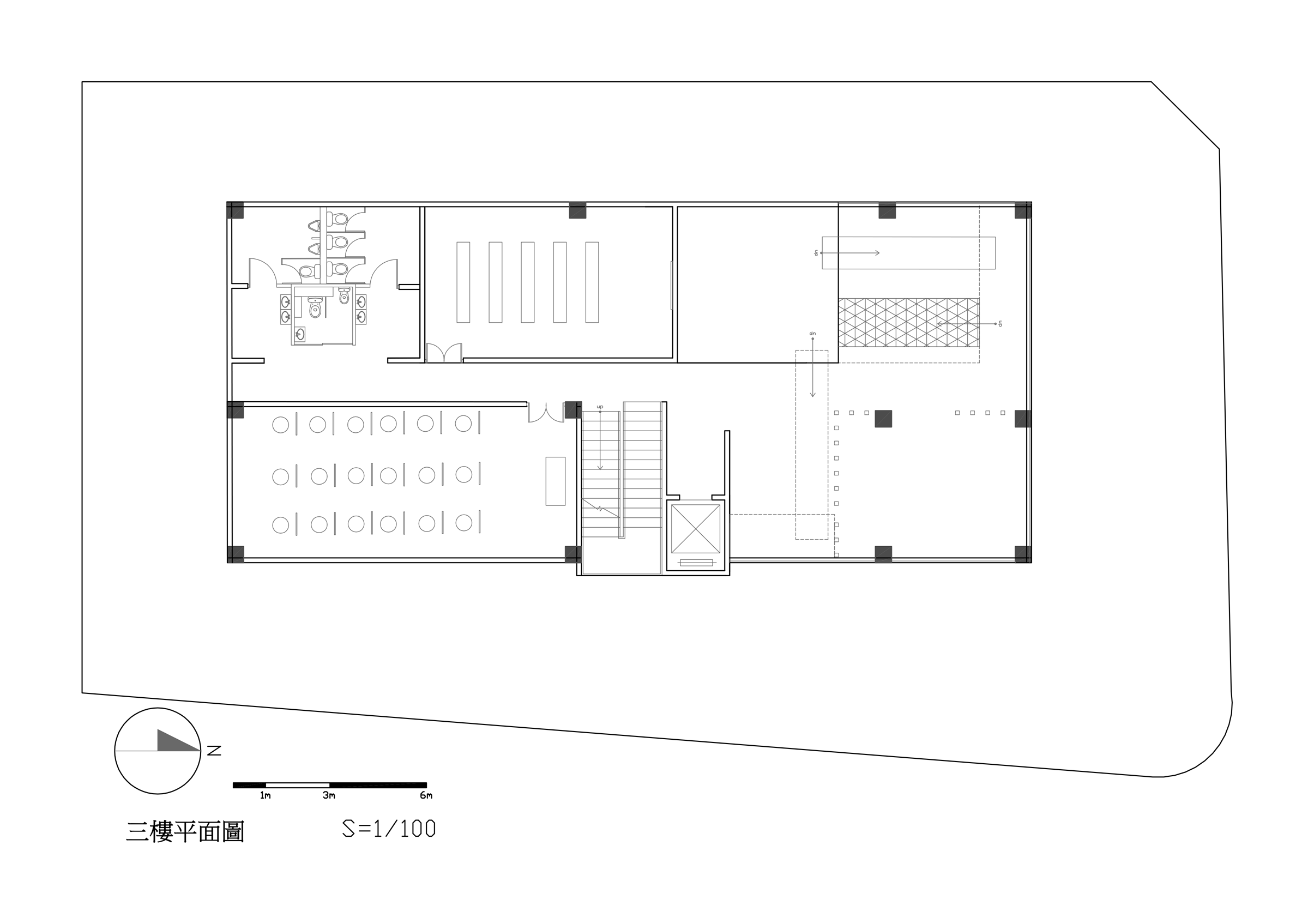
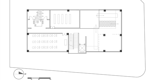
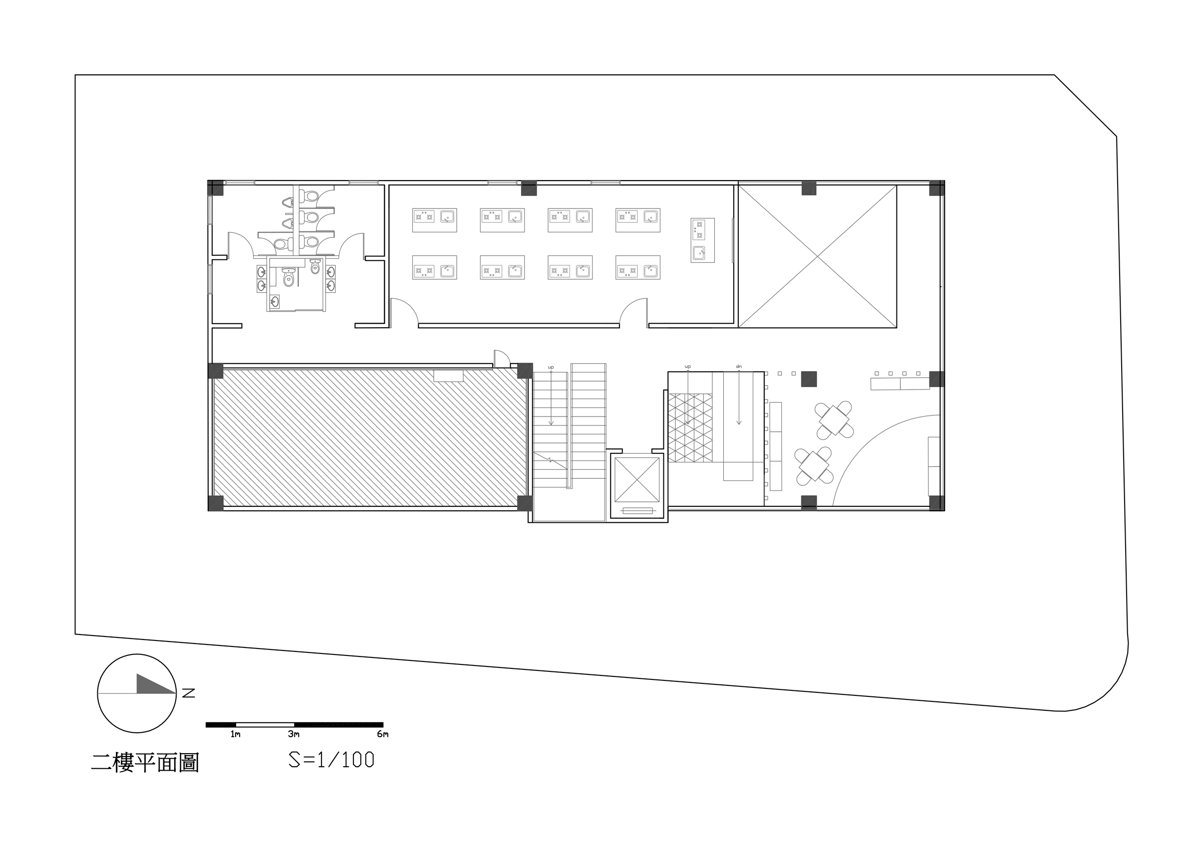
課題:社區親子活動中心
2016 春季
學生:朱妤
台灣科技大學建築系
設計說明:
以公園常見的遊樂場玩物- 爬網、溜滑梯等
連接各層空間,到達空間時不只有樓梯或是電
梯等選擇,我們也可以憑著有趣的動線,讓小
朋友玩的開心的一個活動中心。
專業作品
學生作品
參訪旅記
見學 黃俊銘教授
人物
讀書會
第1回 楊瑞禎建築師紀念設計獎
第2回 楊瑞禎建築師紀念設計獎
建材產品
展覽+新聞
2018 銘傳建築系畢業設計展