Clark Aqua Planet 2018
Clark Freeport Zone, Philippines
Designed by K.C.H. Architects and Associates
ABOUT Clark Aqua Planet
Enjoy full entertainment!
http://www.aquaplanet.ph/
Aqua Planet sits on a 10-hectare property inside Clark Freeport Zone, Pampanga, Philippines. It is the Philippines’ newest and most modern water theme park with over 25 attractions suitable for guests of all ages. It also has facilities to cater guests with disabilities. For those looking for food, beverages and shopping, Aqua Planet has 8 designated shop & dine areas. Skip the metro and crowds and experience world-class and exhilarating water rides, enjoy endless fun and adventure at a water theme park which you have never experience from anywhere else in the Philippines. Aqua Planet is committed to provide harmless and enjoyable experience for guests of all ages.
菲律賓水樂園 2018
謝國鐘建築師事務所
https://kchstudioarchitect.wixsite.com/kcharchitects/blank-2
設計說明
基地位於菲律賓克拉克自由貿易區的平緩坡地上,原為駐地美軍的渡假小屋區,週遭林木濃密,被渡假飯店及高爾夫球場所包圍。
本案完成後將是菲律賓最大的水樂園,共有六座大型滑道出發平台,10多樣組合滑道、大海嘯、漂流河、衝浪地、兒童池及多間餐廳等,全園瞬時總容納人數約7000人。
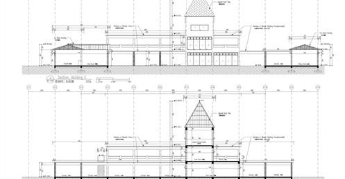
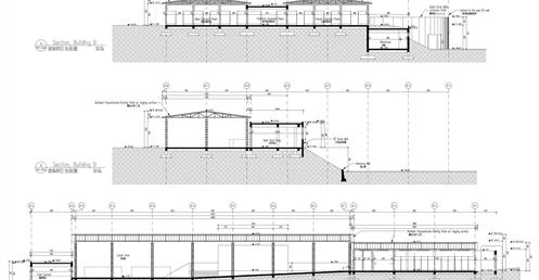
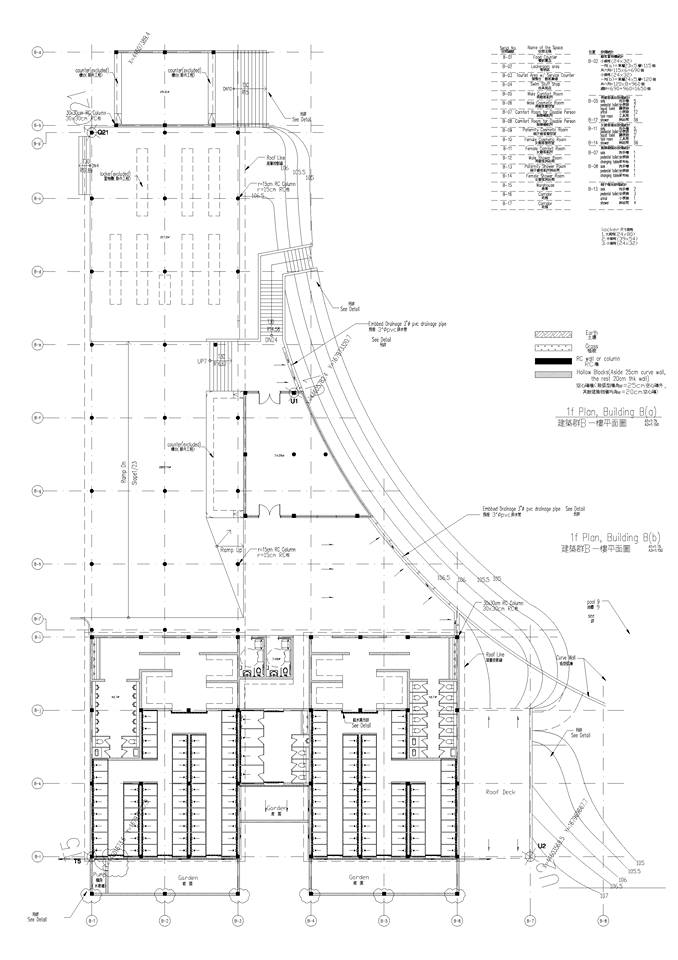
入口廣場以兩道弧形造型牆界定園內園外,長達125m的高弧牆有多處開口,供遊客、車輛行,長30m的低弧牆則強調出購票亭的位置,兒童戲水池則是由另一道弧型牆所界定,此弧牆埋入坡地中成為擋土牆,在這三道弧型牆之間散佈著員工辦公室、男女更衣室、紀念品店、服務中心、置物區及飲食店。
漂流河環繞的中央島嶼,配置品字型建物做為主題餐廳及休憩涼亭,最高尖頂建物內有中央監控室,控管大海嘯燈光及音響,大海嘯設備機房與員工辦公室共構。
地點:菲律賓克拉克自由貿易區(Clark Freeport Zone,Pampanga,Philippines)
業主:中佑資訊有限公司
設計:謝國鐘建築師事務所
謝國鐘、林哲毅、黃世範、林宗偉、周楠紘
結構:國興結構技師事務所
機電:永盛電機技師事務所
景觀:六國景觀設計有限公司
滑道設計:美國ADG, 滑道施工: 巴比倫泳池公司
施工:WHCC(WAW HONG CONSTRUCTION CORP.)+
亞通能源科技股份有限公司
基地:78,628m2
樓地板面積:6,292.23m2
時間:2013~2018,已在2018/2/24開始營運
Clark Freeport Zone, Philippines
Designed by K.C.H. Architects and Associates
ABOUT Clark Aqua Planet
Enjoy full entertainment!
http://www.aquaplanet.ph/
Aqua Planet sits on a 10-hectare property inside Clark Freeport Zone, Pampanga, Philippines. It is the Philippines’ newest and most modern water theme park with over 25 attractions suitable for guests of all ages. It also has facilities to cater guests with disabilities. For those looking for food, beverages and shopping, Aqua Planet has 8 designated shop & dine areas. Skip the metro and crowds and experience world-class and exhilarating water rides, enjoy endless fun and adventure at a water theme park which you have never experience from anywhere else in the Philippines. Aqua Planet is committed to provide harmless and enjoyable experience for guests of all ages.
菲律賓水樂園 2018
謝國鐘建築師事務所
https://kchstudioarchitect.wixsite.com/kcharchitects/blank-2
設計說明
基地位於菲律賓克拉克自由貿易區的平緩坡地上,原為駐地美軍的渡假小屋區,週遭林木濃密,被渡假飯店及高爾夫球場所包圍。
本案完成後將是菲律賓最大的水樂園,共有六座大型滑道出發平台,10多樣組合滑道、大海嘯、漂流河、衝浪地、兒童池及多間餐廳等,全園瞬時總容納人數約7000人。
入口廣場以兩道弧形造型牆界定園內園外,長達125m的高弧牆有多處開口,供遊客、車輛行,長30m的低弧牆則強調出購票亭的位置,兒童戲水池則是由另一道弧型牆所界定,此弧牆埋入坡地中成為擋土牆,在這三道弧型牆之間散佈著員工辦公室、男女更衣室、紀念品店、服務中心、置物區及飲食店。
漂流河環繞的中央島嶼,配置品字型建物做為主題餐廳及休憩涼亭,最高尖頂建物內有中央監控室,控管大海嘯燈光及音響,大海嘯設備機房與員工辦公室共構。
地點:菲律賓克拉克自由貿易區(Clark Freeport Zone,Pampanga,Philippines)
業主:中佑資訊有限公司
設計:謝國鐘建築師事務所
謝國鐘、林哲毅、黃世範、林宗偉、周楠紘
結構:國興結構技師事務所
機電:永盛電機技師事務所
景觀:六國景觀設計有限公司
滑道設計:美國ADG, 滑道施工: 巴比倫泳池公司
施工:WHCC(WAW HONG CONSTRUCTION CORP.)+
亞通能源科技股份有限公司
基地:78,628m2
樓地板面積:6,292.23m2
時間:2013~2018,已在2018/2/24開始營運























































































