2018 春假
旅記 楊國隆
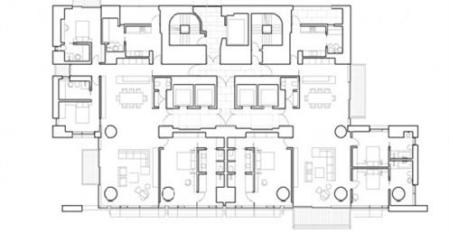
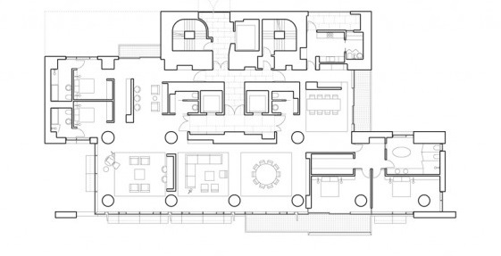
Richard Meier 在台北市松仁路信義路口的高層住宅。預計今年完工。
設計借由幾個非常單純的建築手法:實虛、薄板、挖洞、對縫、圓柱、退縮等等,讓陽光照射在白色量體上的陰影,在水平跟垂直面上的變化變得非常豐富。
我想RM的作品或許就像固定只用味醂、清酒、醬油、糖等幾樣調味料的「京番菜」一樣,是建築的家常菜,沒有嚇死人的宣言,只有不會退流行的耐看。
其他:
http://www.richardmeier.com/?projects=cdc-55-timeless-xin-yi-residential-tower
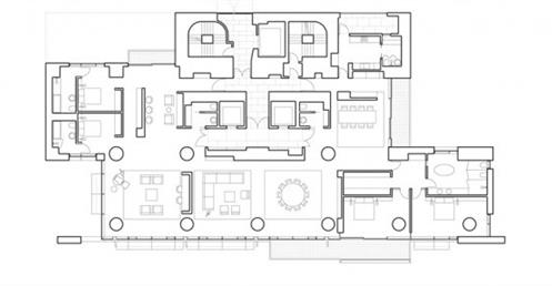
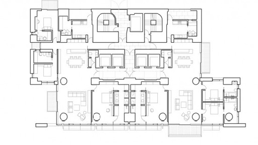
旅記 楊國隆
Richard Meier 在台北市松仁路信義路口的高層住宅。預計今年完工。
設計借由幾個非常單純的建築手法:實虛、薄板、挖洞、對縫、圓柱、退縮等等,讓陽光照射在白色量體上的陰影,在水平跟垂直面上的變化變得非常豐富。
我想RM的作品或許就像固定只用味醂、清酒、醬油、糖等幾樣調味料的「京番菜」一樣,是建築的家常菜,沒有嚇死人的宣言,只有不會退流行的耐看。
其他:
http://www.richardmeier.com/?projects=cdc-55-timeless-xin-yi-residential-tower



































































































