僑心居045號- 生土民居之死亡與重生
設計者:鄭博聞/中國文化大學都市計畫與開發管理學系
作品時間:2018 大三作品
指導老師:葉山銘老師
第1回 楊瑞禎建築師紀念設計獎 參加作品編號013
設計說明
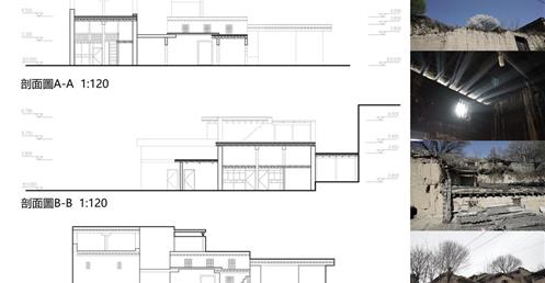
布瓦寨是位於中國大陸四川省汶川縣縣城(威州鎮)龍山上的古羌族山寨,與縣城都心區相距有13km山路,半小時之車程,三小時之步行路程。2008年“512”大地震後,布瓦寨大部分民宅遭到摧毀。在大地震後的援建計畫之中,廣東省對應汶川之援建團隊,在布瓦寨建起了一批全新的夯土民宅,統稱為“僑心居”。
隨著時間的推移,汶川地區發生了數次小震和泥石流灾害,導致布瓦寨的生土民居結構受損,漸漸變得無法居住。本設計以布瓦寨“僑心居045號”民宅為例,探討布瓦傳統民居環境和未來發展的新可能。
氐羌系民族古老龐大,在中華文明之歷史上處於宗祖地位。大約2000年前羌人於岷江上游布瓦龍山修建布瓦寨,世世代代以農牧業為生。隨著時代的發展,布瓦寨的年輕人逐漸走向縣城和更遠的地方工作生活,寨中的產業較為原始,漸漸形成了主要以中老年人組成的“空心寨”。
2008年5月12日,汶川發生八級特大地震,布瓦寨大多由土夯建築構成,受損極其嚴重。地震之後,布瓦原住民被迫離開自己的家鄉到都市中生活。親人的離去,城中生活的乏味,居住在縣城中的布瓦老人處於孤獨與思鄉的雙重情感之中。
僑心居045號民宅的主人老馬,在大地震中失去了自己的兒子,同他的鄰居一樣滿懷著失去親人的傷痛,孤獨地生活著。對僑心居045號的改造計畫欲將兩位老人和他們倖存的親人團聚到一起,抱團養老,重新組成特別的“一家人”,從都市回到鄉村共同生活。今天的布瓦寨發展著特色的種植產業,具有良好的交通條件,但是因為缺乏服務產業(餐飲,旅宿),因而罕有人迹。改造計畫中充分考慮了布瓦民宅對回鄉年輕人和上山旅客的留宿接納,也滿足了來客用餐和交流的需求。希望以僑心居045號的改造形成對整個布瓦寨發展之蝴蝶效應,使布瓦寨以宜居的環境和獨特的民族風貌面向大山之外開放。
設計者:鄭博聞/中國文化大學都市計畫與開發管理學系
作品時間:2018 大三作品
指導老師:葉山銘老師
第1回 楊瑞禎建築師紀念設計獎 參加作品編號013
設計說明
布瓦寨是位於中國大陸四川省汶川縣縣城(威州鎮)龍山上的古羌族山寨,與縣城都心區相距有13km山路,半小時之車程,三小時之步行路程。2008年“512”大地震後,布瓦寨大部分民宅遭到摧毀。在大地震後的援建計畫之中,廣東省對應汶川之援建團隊,在布瓦寨建起了一批全新的夯土民宅,統稱為“僑心居”。
隨著時間的推移,汶川地區發生了數次小震和泥石流灾害,導致布瓦寨的生土民居結構受損,漸漸變得無法居住。本設計以布瓦寨“僑心居045號”民宅為例,探討布瓦傳統民居環境和未來發展的新可能。
氐羌系民族古老龐大,在中華文明之歷史上處於宗祖地位。大約2000年前羌人於岷江上游布瓦龍山修建布瓦寨,世世代代以農牧業為生。隨著時代的發展,布瓦寨的年輕人逐漸走向縣城和更遠的地方工作生活,寨中的產業較為原始,漸漸形成了主要以中老年人組成的“空心寨”。
2008年5月12日,汶川發生八級特大地震,布瓦寨大多由土夯建築構成,受損極其嚴重。地震之後,布瓦原住民被迫離開自己的家鄉到都市中生活。親人的離去,城中生活的乏味,居住在縣城中的布瓦老人處於孤獨與思鄉的雙重情感之中。
僑心居045號民宅的主人老馬,在大地震中失去了自己的兒子,同他的鄰居一樣滿懷著失去親人的傷痛,孤獨地生活著。對僑心居045號的改造計畫欲將兩位老人和他們倖存的親人團聚到一起,抱團養老,重新組成特別的“一家人”,從都市回到鄉村共同生活。今天的布瓦寨發展著特色的種植產業,具有良好的交通條件,但是因為缺乏服務產業(餐飲,旅宿),因而罕有人迹。改造計畫中充分考慮了布瓦民宅對回鄉年輕人和上山旅客的留宿接納,也滿足了來客用餐和交流的需求。希望以僑心居045號的改造形成對整個布瓦寨發展之蝴蝶效應,使布瓦寨以宜居的環境和獨特的民族風貌面向大山之外開放。















































