生態系ECOSYSTEM
設計者:劉璨瑜(大四)、陳盈慈(大三)/中原大學室內設計學系
作品時間:2018 大三作品
指導老師:林峯立老師
第1回 楊瑞禎建築師紀念設計獎 參加作品編號015
設計說明
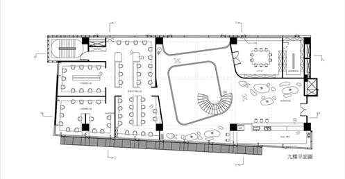
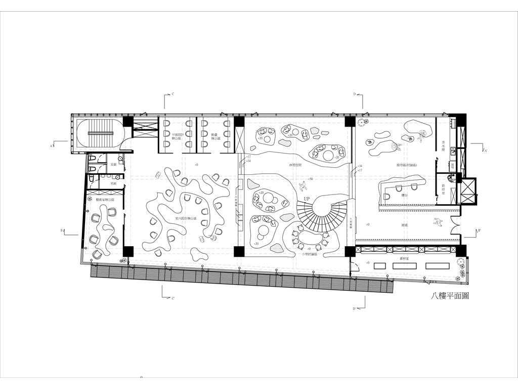
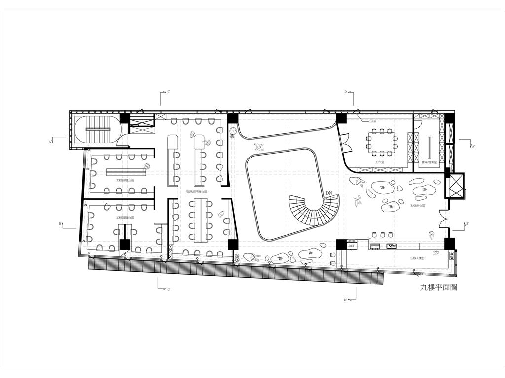
基地 台北市內湖區基湖路32號8樓及9樓
品牌介紹
東京台場的「MORI Building DIGITAL ART MUSEUM: teamLab Borderless」,以「Borderless」為名,傳達了 teamLab 的重要理念:「突破邊界」。
設計問題
隨著科技的改變設計出能跟得上時代演進的空間,在作品裡加入集團的關係性,對觀賞者之間的關係性產生影響,讓每個空間有彼此的關聯。
設計概念
每種生物的生存都必定與其他生物互相關聯,從個體(人)-族群(部門)-群集(團隊)-生態系(公司)。以生態系(ECOSYSTEM)來解釋辦公室內人與人、人與空間、人與時間的關係,就如同TeamLab的多項作品中想表達的事,藉由「改變數位藝術的概念,打破了人和藝術作品之間的邊界。」延伸到辦公室的運作。
「不刻意去定義每個空間,讓所有空間保持變動的可能,像是展覽空間一般」以承載業主在不同時期對空間的需求。
經營模式
秉持團隊「無邊界」的哲學理念,TeamLab捨棄傳統的企業架構、職稱和等級劃分,所有員工都是團隊的主要組成。延續TeamLab的辦公精神,考量團隊作業的需求,讓辦公空間更具彈性。
空間說明
沒有邊界的藝術會走出房間,與其他作品產生交流。作品之間沒有界線,時而混合,時而互相影響。這些相互交融的作品,組成了一個沒有邊界互相連續的世界。
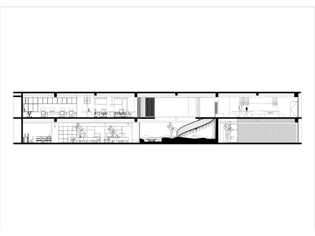
入口廊道
從進公司的那一刻即是一種身分的轉換,從個體進入到生態系,我們打造了具有儀式感的廊道希望每一位蒞臨的人能直接的體驗並感受到TeamLab的品牌精神。入口運用了感測裝置,讓人在走動的同時廊道旁的燈會隨之亮起。
櫃台與接待區
延續廊道的氛圍來到了櫃檯與接待區,在空間中營造出生態系的感覺,不規則的家具結合燈光製造出漂浮感。
休閒空間
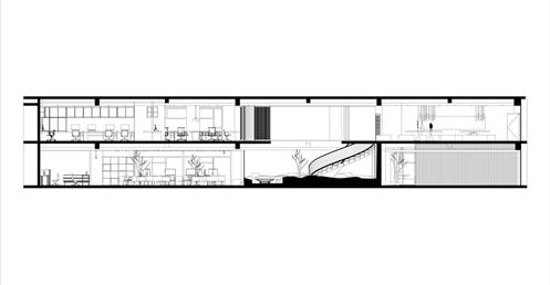
八樓的中心設計了一個有機體型態的空間,提供了寬廣的空間來展示TeamLab的投影技術且與員工、外來賓客等都能產生高度的互動性,願能創造數位藝術與人們之間嶄新的關係性。
室內設計辦公區
除了棋盤式的座位,辦公空間還可以是甚麼模樣?我們改變了大眾對辦公空間的既有印象,相較於傳統的辦公室,不規則型態的辦公桌造成了更多的互動與交流。
咖啡廳及座位區
延續八樓有機體座位型態再做出變化。九樓配合八樓的休閒空間做了兩個挑空,挑空區周圍的牆是由玻璃纖維構成,創造出了與入口類似的廊道。咖啡廳善用了落地窗製造的自然光線,整體空間更加寬敞明亮。
設計者:劉璨瑜(大四)、陳盈慈(大三)/中原大學室內設計學系
作品時間:2018 大三作品
指導老師:林峯立老師
第1回 楊瑞禎建築師紀念設計獎 參加作品編號015
設計說明
基地 台北市內湖區基湖路32號8樓及9樓
品牌介紹
東京台場的「MORI Building DIGITAL ART MUSEUM: teamLab Borderless」,以「Borderless」為名,傳達了 teamLab 的重要理念:「突破邊界」。
設計問題
隨著科技的改變設計出能跟得上時代演進的空間,在作品裡加入集團的關係性,對觀賞者之間的關係性產生影響,讓每個空間有彼此的關聯。
設計概念
每種生物的生存都必定與其他生物互相關聯,從個體(人)-族群(部門)-群集(團隊)-生態系(公司)。以生態系(ECOSYSTEM)來解釋辦公室內人與人、人與空間、人與時間的關係,就如同TeamLab的多項作品中想表達的事,藉由「改變數位藝術的概念,打破了人和藝術作品之間的邊界。」延伸到辦公室的運作。
「不刻意去定義每個空間,讓所有空間保持變動的可能,像是展覽空間一般」以承載業主在不同時期對空間的需求。
經營模式
秉持團隊「無邊界」的哲學理念,TeamLab捨棄傳統的企業架構、職稱和等級劃分,所有員工都是團隊的主要組成。延續TeamLab的辦公精神,考量團隊作業的需求,讓辦公空間更具彈性。
空間說明
沒有邊界的藝術會走出房間,與其他作品產生交流。作品之間沒有界線,時而混合,時而互相影響。這些相互交融的作品,組成了一個沒有邊界互相連續的世界。
入口廊道
從進公司的那一刻即是一種身分的轉換,從個體進入到生態系,我們打造了具有儀式感的廊道希望每一位蒞臨的人能直接的體驗並感受到TeamLab的品牌精神。入口運用了感測裝置,讓人在走動的同時廊道旁的燈會隨之亮起。
櫃台與接待區
延續廊道的氛圍來到了櫃檯與接待區,在空間中營造出生態系的感覺,不規則的家具結合燈光製造出漂浮感。
休閒空間
八樓的中心設計了一個有機體型態的空間,提供了寬廣的空間來展示TeamLab的投影技術且與員工、外來賓客等都能產生高度的互動性,願能創造數位藝術與人們之間嶄新的關係性。
室內設計辦公區
除了棋盤式的座位,辦公空間還可以是甚麼模樣?我們改變了大眾對辦公空間的既有印象,相較於傳統的辦公室,不規則型態的辦公桌造成了更多的互動與交流。
咖啡廳及座位區
延續八樓有機體座位型態再做出變化。九樓配合八樓的休閒空間做了兩個挑空,挑空區周圍的牆是由玻璃纖維構成,創造出了與入口類似的廊道。咖啡廳善用了落地窗製造的自然光線,整體空間更加寬敞明亮。



























































