格≠隔
設計者:李語欣、彭美佩/ 中原大學室内設計系
作品時間:2019年大三作品
指導老師:長友大輔老師
第1回 楊瑞禎建築師紀念設計獎 參加作品編號019
設計說明
THE GETTYS GROUP是本次設計的業主,他們是專門為旅宿,例如HOTEL、MOTEL或民宿等做室内設計國際公司,公司遍佈在美洲、亞太、中東、歐洲和北美世界各地。這次會把位於亞太區的公司從菲律賓遷移到台灣的主要原因是因爲台灣更為豐富的旅游業,根據2019年統計台灣的年遊客量已經突破1100萬,台灣擁有龐大的旅宿需求與市場。
基地
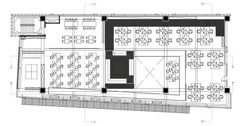
本次設計地點位於臺北地區內湖科學園區鴻海的「國碁電子大樓」的8及9樓,兩層總面積約計1,146平方公尺 ,西南側面向公園及堤頂大道。
概念説明
如標題格≠隔,這次的設計概念意為“格子”不等於“隔開”。採用公司THE GETTYS GROUP 的Logo的概念,Logo理念:鏈接各個部門,象徵著公司的一體與重視彼此交流。從Logo的立體圖,能看見不同彩色的格子,代表公司的每個部門,其中還有連接各個部門的走道。我們的設計轉換使Logo在保留其理念的同時在空間也有了它被轉換后的樣子。
首先依據原Logo的5個顔色的格子,把各個部門也用彩色玻璃圍成格子,玻璃隔間區分領域的同時也保持通透性,玻璃為綠色環保材料,可回收再利用。
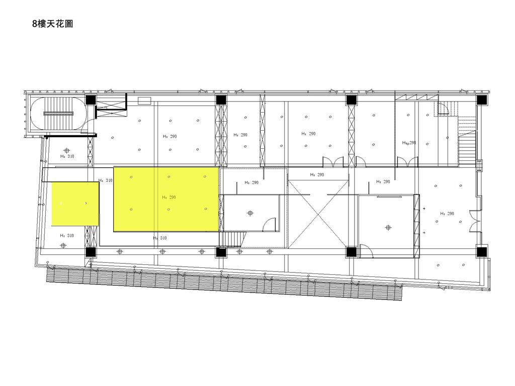
在八樓的部門有黃色的管理與行銷部門,九樓的部門則分別有紫色的工程部、青色的品牌營運部門、淺藍色結合了藍色的設計部門與白色的創新部門,為設計與創意部。
此外,在整個空間中的黑盒子是設計重點,爲了凸顯黑盒子我們在它旁邊做了挑空,使它成爲一個獨立的量體。黑盒子的概念是“聚”,空間用途是讓整體員工都能聚到裏面進行交流、娛樂、討論等。另外也明顯能發現的黑色走道是採用原Logo“鏈接”的理念,它分別分佈在8、9樓層的各個部門旁,串聯起每個部門之外也是員工們前往”聚“黑盒子的通道。
天花部分我們在每個顔色部門的“格子”範圍内的天花都做了相應顔色的天花,另外入口處由於是主意像區,依據我們整個空間的設計概念都是源於Logo,所以也在入口處設計了個極具表象的Logo燈飾。
最後,材質用色方面爲了凸顯概念的顔色其他地方都大面積留白。
設計者:李語欣、彭美佩/ 中原大學室内設計系
作品時間:2019年大三作品
指導老師:長友大輔老師
第1回 楊瑞禎建築師紀念設計獎 參加作品編號019
設計說明
THE GETTYS GROUP是本次設計的業主,他們是專門為旅宿,例如HOTEL、MOTEL或民宿等做室内設計國際公司,公司遍佈在美洲、亞太、中東、歐洲和北美世界各地。這次會把位於亞太區的公司從菲律賓遷移到台灣的主要原因是因爲台灣更為豐富的旅游業,根據2019年統計台灣的年遊客量已經突破1100萬,台灣擁有龐大的旅宿需求與市場。
基地
本次設計地點位於臺北地區內湖科學園區鴻海的「國碁電子大樓」的8及9樓,兩層總面積約計1,146平方公尺 ,西南側面向公園及堤頂大道。
概念説明
如標題格≠隔,這次的設計概念意為“格子”不等於“隔開”。採用公司THE GETTYS GROUP 的Logo的概念,Logo理念:鏈接各個部門,象徵著公司的一體與重視彼此交流。從Logo的立體圖,能看見不同彩色的格子,代表公司的每個部門,其中還有連接各個部門的走道。我們的設計轉換使Logo在保留其理念的同時在空間也有了它被轉換后的樣子。
首先依據原Logo的5個顔色的格子,把各個部門也用彩色玻璃圍成格子,玻璃隔間區分領域的同時也保持通透性,玻璃為綠色環保材料,可回收再利用。
在八樓的部門有黃色的管理與行銷部門,九樓的部門則分別有紫色的工程部、青色的品牌營運部門、淺藍色結合了藍色的設計部門與白色的創新部門,為設計與創意部。
此外,在整個空間中的黑盒子是設計重點,爲了凸顯黑盒子我們在它旁邊做了挑空,使它成爲一個獨立的量體。黑盒子的概念是“聚”,空間用途是讓整體員工都能聚到裏面進行交流、娛樂、討論等。另外也明顯能發現的黑色走道是採用原Logo“鏈接”的理念,它分別分佈在8、9樓層的各個部門旁,串聯起每個部門之外也是員工們前往”聚“黑盒子的通道。
天花部分我們在每個顔色部門的“格子”範圍内的天花都做了相應顔色的天花,另外入口處由於是主意像區,依據我們整個空間的設計概念都是源於Logo,所以也在入口處設計了個極具表象的Logo燈飾。
最後,材質用色方面爲了凸顯概念的顔色其他地方都大面積留白。











































































