第1回楊瑞禎建築師紀念設計獎 最優秀獎作品 High Distinction Award
生命軸的兩端-老幼互托中心結合銀髮旅居
設計者:張少菱、卓芸仙/ 國立臺中科技大學室內設計系
作品時間:2019年大四作品
指導老師:劉易鑫老師
第1回 楊瑞禎建築師紀念設計獎 參加作品編號021
設計說明
台灣在2018正式進入高齡社會,並且朝向超高齡化當中,增設高齡空間是未來的趨勢。
也因為高齡化及人口密集的關係,老小無法兼顧便也變為一種社會現象。於是我們以[老小互補]做這次的出發點。
社會上的高齡者概分為四種類型:
1.獨立型:大部分時間能獨立生活,只是偶爾需要服務。
2.堅持型:能不斷經由鍛鍊,維持身體健康和照料自己的能力。
3.康復型:身體疾患,正在康復中。
4.照料型:需要大量的醫療與生活照料。
我們將高齡者分析過後針對社會上佔85%的獨立型與堅持型高齡者、結合4-6歲兒童做主要客群,打造全樂齡空間。
基地選址於東勢,東勢為全台中高齡化最嚴重的區域。
以東勢國小日式舊校舍作為計畫實施地點。東勢國小日式舊校舍為日治時期教師的住所,建於1921年。曾遭當地居民投訴表示日式宿舍荒廢許久,雜草蚊蟲孳生,沒人敢靠近。
如何讓高齡者與幼童間互動?
高齡者為社會的寶,多方面皆為最有經驗的長者。園區空間以生活教育、在地文化做主題,並以[共學、伴學、教學][相護、陪伴、正向]為高齡者與幼童間的互動方式。
整體園區為長型,將兩端分為高齡者與幼童的獨立空間,西向主入口進入後對應到的是高齡獨立空間及行政服務區;而北向次入口則是對應於幼兒獨立區域。
高齡獨立區域提供盥洗及休憩、圖書室、夜晚則提供銀髮旅宿的服務。
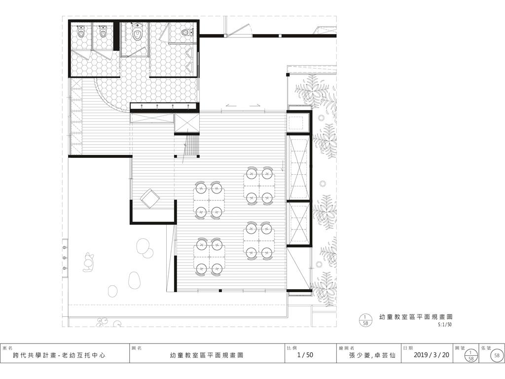
幼兒獨立區域則為幼兒學程的上課教室。
中間區段坐落新建的共同使用區域以及戶外休閒娛樂。
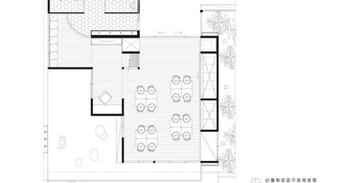
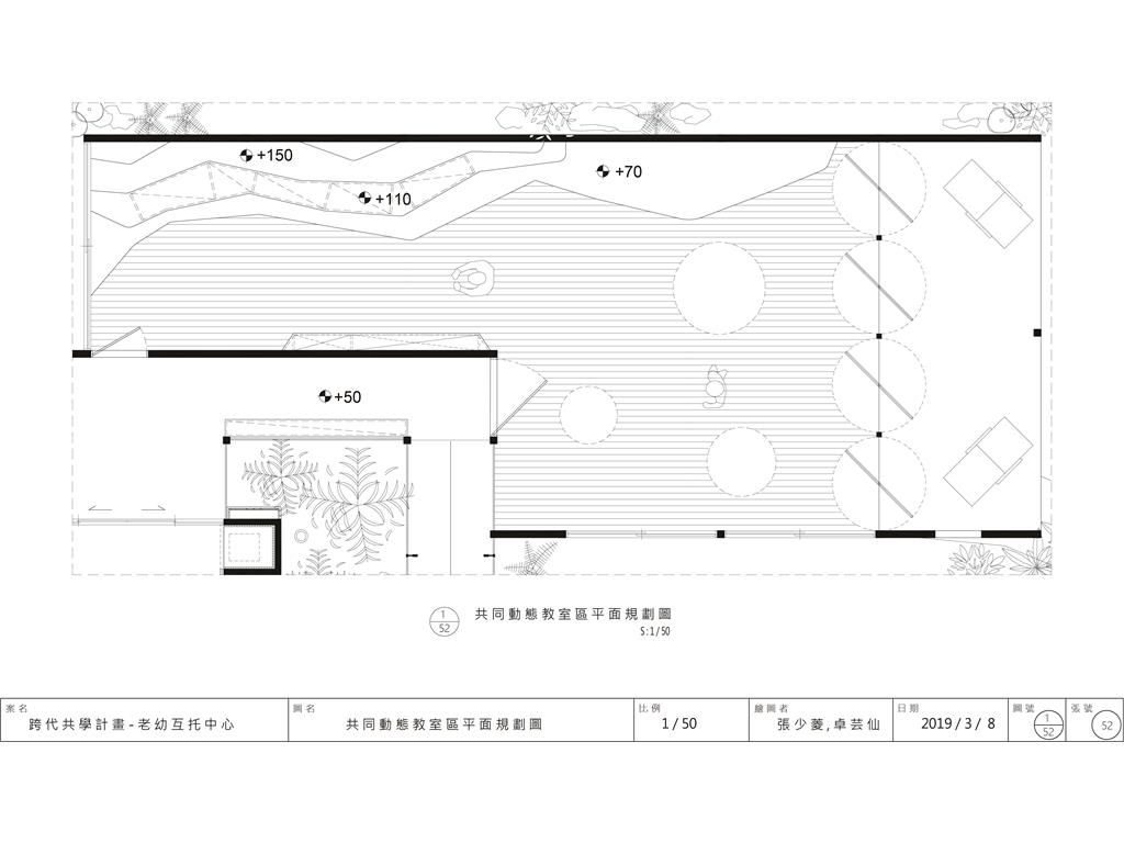
共同教室我們分為靜態教室與動態教室,教室內家具皆特別針對高齡者與幼童的身體尺度做設計,也可以彈性的做不同的排列組合,以因應不同的課程需求。
淺水池、抬高式菜園則為至主要戶外共同休閒娛樂,細部設計也以高齡者和幼童能夠共同使用做設計。
新舊建築之間結合了日式緣側及客家廊間的文化,以廊道作為串連整體園區的核心及媒介,並且穿插了大量綠意。
藉由這個設計,能夠使大眾開始去思考,未來高齡空間與社會之間的交集、舊建築再利用的可能性及發展。
生命軸的兩端-老幼互托中心結合銀髮旅居
設計者:張少菱、卓芸仙/ 國立臺中科技大學室內設計系
作品時間:2019年大四作品
指導老師:劉易鑫老師
第1回 楊瑞禎建築師紀念設計獎 參加作品編號021
設計說明
台灣在2018正式進入高齡社會,並且朝向超高齡化當中,增設高齡空間是未來的趨勢。
也因為高齡化及人口密集的關係,老小無法兼顧便也變為一種社會現象。於是我們以[老小互補]做這次的出發點。
社會上的高齡者概分為四種類型:
1.獨立型:大部分時間能獨立生活,只是偶爾需要服務。
2.堅持型:能不斷經由鍛鍊,維持身體健康和照料自己的能力。
3.康復型:身體疾患,正在康復中。
4.照料型:需要大量的醫療與生活照料。
我們將高齡者分析過後針對社會上佔85%的獨立型與堅持型高齡者、結合4-6歲兒童做主要客群,打造全樂齡空間。
基地選址於東勢,東勢為全台中高齡化最嚴重的區域。
以東勢國小日式舊校舍作為計畫實施地點。東勢國小日式舊校舍為日治時期教師的住所,建於1921年。曾遭當地居民投訴表示日式宿舍荒廢許久,雜草蚊蟲孳生,沒人敢靠近。
如何讓高齡者與幼童間互動?
高齡者為社會的寶,多方面皆為最有經驗的長者。園區空間以生活教育、在地文化做主題,並以[共學、伴學、教學][相護、陪伴、正向]為高齡者與幼童間的互動方式。
整體園區為長型,將兩端分為高齡者與幼童的獨立空間,西向主入口進入後對應到的是高齡獨立空間及行政服務區;而北向次入口則是對應於幼兒獨立區域。
高齡獨立區域提供盥洗及休憩、圖書室、夜晚則提供銀髮旅宿的服務。
幼兒獨立區域則為幼兒學程的上課教室。
中間區段坐落新建的共同使用區域以及戶外休閒娛樂。
共同教室我們分為靜態教室與動態教室,教室內家具皆特別針對高齡者與幼童的身體尺度做設計,也可以彈性的做不同的排列組合,以因應不同的課程需求。
淺水池、抬高式菜園則為至主要戶外共同休閒娛樂,細部設計也以高齡者和幼童能夠共同使用做設計。
新舊建築之間結合了日式緣側及客家廊間的文化,以廊道作為串連整體園區的核心及媒介,並且穿插了大量綠意。
藉由這個設計,能夠使大眾開始去思考,未來高齡空間與社會之間的交集、舊建築再利用的可能性及發展。























































