Tamsui Art Museum
設計者:彭茜/ 淡江大學建築學系
作品時間:2019年大四作品
指導老師:曾國超老師
第1回 楊瑞禎建築師紀念設計獎 參加作品編號027
設計說明
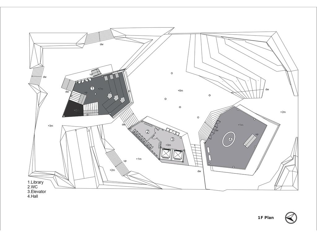
淡水作為臺灣北部最早開始有西方人與漢民族活動的地方一,有著悠久的文化底蘊,許多藝術家紮根淡水,描繪淡水之美。由於近年來少子化問題的存在,淡水國小有機會開放一塊空間作為地區美術館使用;借此增強與社會和社區的互動,也豐富了淡水國小的校園空間的文化內容。
本次設計我由Rene Magritte所創作的窗系列發想;意圖將Magritte所擅長的創造矛盾融入到空間設計中;將一個有重量感的量體放入基地,讓身處在設計之外的人無法忽視;然而在內部空間卻強調著一種流動感,並使用穿孔鋁板作為外皮層因而產生一種較為強烈的穿透性。讓身處在空間內外中的人產生兩種截然不同的空間印象,形成獨特的空間感受。
設計者:彭茜/ 淡江大學建築學系
作品時間:2019年大四作品
指導老師:曾國超老師
第1回 楊瑞禎建築師紀念設計獎 參加作品編號027
設計說明
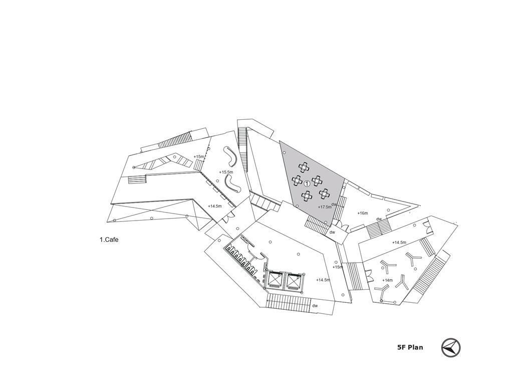
淡水作為臺灣北部最早開始有西方人與漢民族活動的地方一,有著悠久的文化底蘊,許多藝術家紮根淡水,描繪淡水之美。由於近年來少子化問題的存在,淡水國小有機會開放一塊空間作為地區美術館使用;借此增強與社會和社區的互動,也豐富了淡水國小的校園空間的文化內容。
本次設計我由Rene Magritte所創作的窗系列發想;意圖將Magritte所擅長的創造矛盾融入到空間設計中;將一個有重量感的量體放入基地,讓身處在設計之外的人無法忽視;然而在內部空間卻強調著一種流動感,並使用穿孔鋁板作為外皮層因而產生一種較為強烈的穿透性。讓身處在空間內外中的人產生兩種截然不同的空間印象,形成獨特的空間感受。



















































