第1回楊瑞禎建築師紀念設計獎 佳作獎作品 Honorable Mention
神的指引
設計者:張溶軒/ 淡江大學建築系
作品時間:2019年大三作品
指導老師:賴怡成老師
第1回 楊瑞禎建築師紀念設計獎 參加作品編號029
設計說明
以賽亞書42:16
神會指引瞎子行不認識的道路,讓黑暗變光明、彎曲變平直
我認為這段話並非物理環境上的黑暗光明、彎曲平直,而是人透過神能找到心靈上的方向感,透過這次設計,我想去重新詮釋方向感的定義,不是侷限在視覺而已。
我認為人能具有方向感,除了是知道與起點的相對位置或是需要朝著什麼前進 ,更重要的是要在腦內描繪出對地理位置的認知,我歸類出人們可以從土地或是自我感知,來找到屬於淡水的方向感。
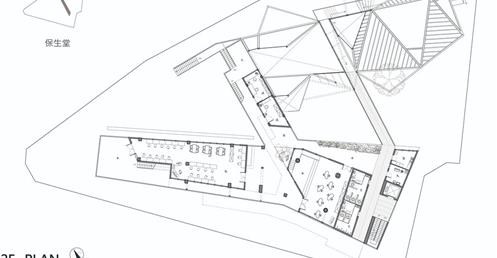
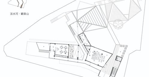
首先是從土地開始找到方向感,淡水有幾處對基督教意義非凡的地標,分別是紅毛城、淡水禮拜堂、馬偕上岸處,我將主要量體朝向這三個地標,讓基督徒在精神上能連接基地和這些地標。
除了整個大淡水的地標,基地附近也有許多保存下來舊有的建築值得人們去面對,對比前面是看不見的隱形軸線,在基地上人們能在特定的高度去欣賞到不同位置的景色,所以我在設計中利用了框景這個手法,希望能突出這些特別的景色。
而自我感知的部分,淡水因為地勢起伏不定,所以在建造房屋的時候需要順著地勢而起,於是方屋和房屋中間就很容易有狹縫產生,我把基地附近的窄巷歸類出有三種空間感受。
第一種是破碎的,它是由牆面延伸出板狀或是塊狀錯落面對,運用在我的設計當中,因為我的社區中心和教堂是兩個量體組成,我希望能從不同量體長出的板狀或是塊狀的空間,增加兩方除了室內連通,也可以在戶外或半戶外對話的機會。
第二種是曲折的,因為路徑的蜿蜒,所以在牆面後會隱約露出斜路去暗示有一條隱藏起來的動線,我有使用到框景的手法,我希望在看到最後最美的景色之前,不只是走過窄長的空間塑造框景感,可能路徑會有個轉折,去增加最後的驚喜感。
第三種是破碎的,植栽之間的隙縫會將完整的景色切分成碎化的小塊,而光會從這間縫隙中透出,我在設計中把這個空間氛圍運用在教堂中,一般印象的教堂是完整的一個體,我希望能夠運用破碎的光去讓教堂內禮拜的人型塑出在樹下修行的安定感。
神的指引
設計者:張溶軒/ 淡江大學建築系
作品時間:2019年大三作品
指導老師:賴怡成老師
第1回 楊瑞禎建築師紀念設計獎 參加作品編號029
設計說明
以賽亞書42:16
神會指引瞎子行不認識的道路,讓黑暗變光明、彎曲變平直
我認為這段話並非物理環境上的黑暗光明、彎曲平直,而是人透過神能找到心靈上的方向感,透過這次設計,我想去重新詮釋方向感的定義,不是侷限在視覺而已。
我認為人能具有方向感,除了是知道與起點的相對位置或是需要朝著什麼前進 ,更重要的是要在腦內描繪出對地理位置的認知,我歸類出人們可以從土地或是自我感知,來找到屬於淡水的方向感。
首先是從土地開始找到方向感,淡水有幾處對基督教意義非凡的地標,分別是紅毛城、淡水禮拜堂、馬偕上岸處,我將主要量體朝向這三個地標,讓基督徒在精神上能連接基地和這些地標。
除了整個大淡水的地標,基地附近也有許多保存下來舊有的建築值得人們去面對,對比前面是看不見的隱形軸線,在基地上人們能在特定的高度去欣賞到不同位置的景色,所以我在設計中利用了框景這個手法,希望能突出這些特別的景色。
而自我感知的部分,淡水因為地勢起伏不定,所以在建造房屋的時候需要順著地勢而起,於是方屋和房屋中間就很容易有狹縫產生,我把基地附近的窄巷歸類出有三種空間感受。
第一種是破碎的,它是由牆面延伸出板狀或是塊狀錯落面對,運用在我的設計當中,因為我的社區中心和教堂是兩個量體組成,我希望能從不同量體長出的板狀或是塊狀的空間,增加兩方除了室內連通,也可以在戶外或半戶外對話的機會。
第二種是曲折的,因為路徑的蜿蜒,所以在牆面後會隱約露出斜路去暗示有一條隱藏起來的動線,我有使用到框景的手法,我希望在看到最後最美的景色之前,不只是走過窄長的空間塑造框景感,可能路徑會有個轉折,去增加最後的驚喜感。
第三種是破碎的,植栽之間的隙縫會將完整的景色切分成碎化的小塊,而光會從這間縫隙中透出,我在設計中把這個空間氛圍運用在教堂中,一般印象的教堂是完整的一個體,我希望能夠運用破碎的光去讓教堂內禮拜的人型塑出在樹下修行的安定感。



























































