Invisible and Visible
設計者:李世惠、黃彩熏/ 中原大學室內設計學系
作品時間:2019年大三作品
指導老師:陽蹲少老師
第1回 楊瑞禎建築師紀念設計獎 參加作品編號035
設計說明
本次的主題為Invisible/Visible,期望塑造一個能讓人自由穿梭於無形與有形中的空間。
我們以日本設計師吉岡德仁(Tokujin Yoshioka)的設計公司作為設計對象。
吉岡的設計手法,是由有形物體所帶來的無形感受,以另一個實體物質去呈現原本的體驗,透過媒材重新塑造感受,喚醒人們曾經歷的記憶。
而他最常運用的概念主要圍繞在「折射、光的呈現」,常使用「三稜鏡」作為媒材。這次設計主軸也以這三個特色作為出發點,將其運用在空間分割、牆體設計與家具設計上。
本次基地長向面為玻璃帷幕牆,配合陽光由東北方升起至西南方落下,帶來良好的光線照射。利用空間分割,將牆面作為光線的引導,透過可反射的牆面,將自然光引入室內。
主要的設計表現於隔間牆,藉由摺紙呈現光的照射路徑,垂直摺痕代表直射的光線,斜紋的摺法則表現出光線在經過不同物質時,所產生的折射,最後演變為牆面的造型。材質使用霧面中空板和透明壓克力拼接,呈現有形與無形交錯的效果,當有人們從牆的一側通過時,可看到模糊的身影與清晰人像交互形成的動態效果。
另個使用的元素為三稜鏡的形狀,利用三角形分割天花,在上方設置投射燈,令光線穿過縫隙在地板上成象,形成分割的效果。而家具也運用三角形進行不同形式的拼接,製作不同長寬、功能的桌椅,且由於角度特性,令家具可像變形蟲般變化延伸,材質部分主要使用鐵件、玻璃及壓克力。
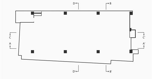
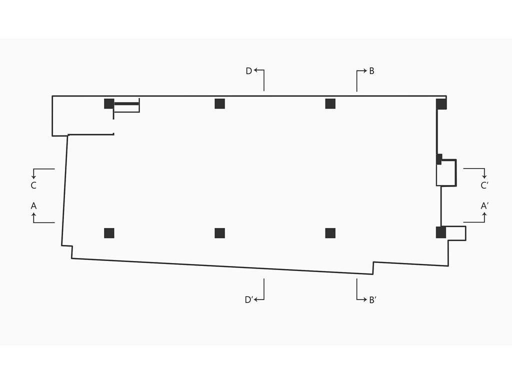
在空間的分割主要以陽光和柱子為基準,光線順著傾斜的牆面,透過反射材質將光線引入內部空間。在配置上,我們將團隊辦公室放置在窗戶旁,而公共休憩空間、討論空間則在較為封閉的中央位置。
8樓是櫃台、員工餐廳、行政部門及資料室分布的樓層,行政工作較不會有常態性的合作溝通,所以採取各部門獨立分隔狀態。而設計部門(包含了室內設計、家具、產品設計以及展覽)、顧問、研究團隊、CEO辦公室及資材室則分布在9樓,9樓空間以彈性自由為主,可在公共空間隨意坐下與同事分享想法、討論設計的可行性,而設計辦公室是以共用辦公室的形式,如:展場結合商空、家具結合產品。
設計者:李世惠、黃彩熏/ 中原大學室內設計學系
作品時間:2019年大三作品
指導老師:陽蹲少老師
第1回 楊瑞禎建築師紀念設計獎 參加作品編號035
設計說明
本次的主題為Invisible/Visible,期望塑造一個能讓人自由穿梭於無形與有形中的空間。
我們以日本設計師吉岡德仁(Tokujin Yoshioka)的設計公司作為設計對象。
吉岡的設計手法,是由有形物體所帶來的無形感受,以另一個實體物質去呈現原本的體驗,透過媒材重新塑造感受,喚醒人們曾經歷的記憶。
而他最常運用的概念主要圍繞在「折射、光的呈現」,常使用「三稜鏡」作為媒材。這次設計主軸也以這三個特色作為出發點,將其運用在空間分割、牆體設計與家具設計上。
本次基地長向面為玻璃帷幕牆,配合陽光由東北方升起至西南方落下,帶來良好的光線照射。利用空間分割,將牆面作為光線的引導,透過可反射的牆面,將自然光引入室內。
主要的設計表現於隔間牆,藉由摺紙呈現光的照射路徑,垂直摺痕代表直射的光線,斜紋的摺法則表現出光線在經過不同物質時,所產生的折射,最後演變為牆面的造型。材質使用霧面中空板和透明壓克力拼接,呈現有形與無形交錯的效果,當有人們從牆的一側通過時,可看到模糊的身影與清晰人像交互形成的動態效果。
另個使用的元素為三稜鏡的形狀,利用三角形分割天花,在上方設置投射燈,令光線穿過縫隙在地板上成象,形成分割的效果。而家具也運用三角形進行不同形式的拼接,製作不同長寬、功能的桌椅,且由於角度特性,令家具可像變形蟲般變化延伸,材質部分主要使用鐵件、玻璃及壓克力。
在空間的分割主要以陽光和柱子為基準,光線順著傾斜的牆面,透過反射材質將光線引入內部空間。在配置上,我們將團隊辦公室放置在窗戶旁,而公共休憩空間、討論空間則在較為封閉的中央位置。
8樓是櫃台、員工餐廳、行政部門及資料室分布的樓層,行政工作較不會有常態性的合作溝通,所以採取各部門獨立分隔狀態。而設計部門(包含了室內設計、家具、產品設計以及展覽)、顧問、研究團隊、CEO辦公室及資材室則分布在9樓,9樓空間以彈性自由為主,可在公共空間隨意坐下與同事分享想法、討論設計的可行性,而設計辦公室是以共用辦公室的形式,如:展場結合商空、家具結合產品。

















































































