世界盡頭與冷酷仙境-台中中區創客中心
設計者:楊伯中
系所:國立台灣大學 建築與城鄉研究所
作品時間:2017年東海大學建築系三年級作品
指導老師:高鼎翔老師
第1回 楊瑞禎建築師紀念設計獎 參加作品編號046
分類:建築設計
設計說明
中區與創客
台中市中區是一個市轄區,是台中市的發源地,也曾是台中中心商業區所在地。時至今日,隨著臺中市的交通及工商業中心西移,和1980年代大量開發的重劃區,以及區內道路窄小、停車困難等因素,中區呈現的衰退趨勢。面對台中縣市合併後超級都市化的發展,臺中市舊城區在都市核心轉移與均質化的發展之下,都市空間紋理與市民生活形態產生明顯變化;舊有村落環境逐漸消失,空屋率上升,人與人之間的互動與社會網絡也產生結構性的改變。
設計題目擬在此設置一個包括旅店、消費、展演空間和辦公空間的複合型創客聚落(Maker Space),旨在吸引台中創新人才進駐,豐富中區的城市機能。面臨超級都市垂直化發展的情況下,如何重新建立個人、社群、產業與聚落、城市之間更為緊密的連接關係,并進一步作為探討社會公共空間本質的機會,創客聚落也扮演了活化中區空間的角色。
在這樣的碰撞下,中區好像一個世界盡頭般的混沌,而創客聚落如同冷酷仙境般的烏托邦。
創客聚落:冷酷仙境
這裡所指的創客,是指那些研發創新并以此為業的狂想家們。我相信每一個成功的創客都有一種建構烏托邦的能力,就好像亨利福特在創造流水線的同時也暗示了美國文化熔爐的理想;迪士尼樂園的成立同時也作為美國經濟大蕭條背後的精神避難所。烏托邦可以製造面向未來的意義,因此格外被創客所青睞,它可以用來牽引社會大眾的心願和行動。從化纖紡織品、可口可樂、時尚產業、房地產到信息時代的互聯網公司,人們認知上所習慣的衣食住行的世界都是被創造出來的,在這個世界中,能統領社會意願者勝,因此富有想象力的商業烏托邦便扮演了引領社會風潮的重要角色。相信的人多了、久了,烏托邦就變成了現實。
世界盡頭與冷酷仙境
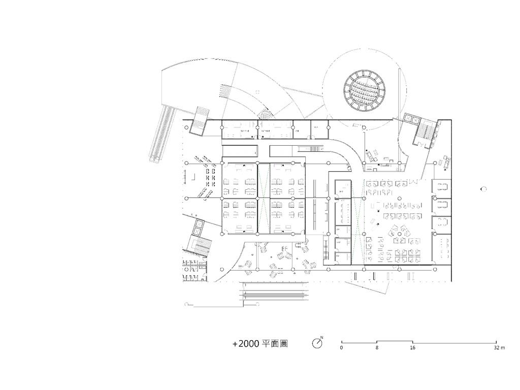
創客的烏托邦要以何種姿態出現在臺中市中區?面對中區和創客中心截然不同的空間氛圍,我認為這樣的衝突和矛盾不應該被弱化,反而是要突出這樣的矛盾,來強調一種介於兩個時代、兩種景觀和兩個觀念的差異性。突出這樣的差異並不是褒獎或貶低任何一方,只是試圖在保留各自個性的同時尋求交流的機會,去尋求一種中區再生的可能。基地預設與中興停車場,原本為柳川一湖面,后封蓋改為停車場至今。現基地南側有一BRT車站,西側有一社區活動空間正在使用,所以停車場附設的小公園市場有老人的小孩子活動。
一舉劈開的都市新平台
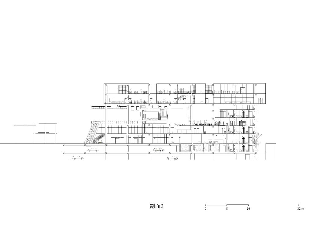
面對到這樣一個巨大的街廓,我將建築量體配置在剖面上橫向劈開,上下分別用不同造型的量體承載不同機能,中間則透過留出一個巨大的平台,為都市引入一個巨大的差異的同時,為中區帶來一個大尺度、高密度活動發生的公共空間。
上方創客中心的公共性機能和下方商場和旅店的公共性機能都放置在中間,這個空間即為創客烏托邦面對到都市的中介空間。上下兩部分,用形體和結構系統區分開來,上方用一個純粹的量體來象征新秩序的建立;下方回應中區都市紋理,用破碎分割的量體和基地四周的街道相連,因為對於中區來說,只有在街道上日常生活才是活生生的。
設計者:楊伯中
系所:國立台灣大學 建築與城鄉研究所
作品時間:2017年東海大學建築系三年級作品
指導老師:高鼎翔老師
第1回 楊瑞禎建築師紀念設計獎 參加作品編號046
分類:建築設計
設計說明
中區與創客
台中市中區是一個市轄區,是台中市的發源地,也曾是台中中心商業區所在地。時至今日,隨著臺中市的交通及工商業中心西移,和1980年代大量開發的重劃區,以及區內道路窄小、停車困難等因素,中區呈現的衰退趨勢。面對台中縣市合併後超級都市化的發展,臺中市舊城區在都市核心轉移與均質化的發展之下,都市空間紋理與市民生活形態產生明顯變化;舊有村落環境逐漸消失,空屋率上升,人與人之間的互動與社會網絡也產生結構性的改變。
設計題目擬在此設置一個包括旅店、消費、展演空間和辦公空間的複合型創客聚落(Maker Space),旨在吸引台中創新人才進駐,豐富中區的城市機能。面臨超級都市垂直化發展的情況下,如何重新建立個人、社群、產業與聚落、城市之間更為緊密的連接關係,并進一步作為探討社會公共空間本質的機會,創客聚落也扮演了活化中區空間的角色。
在這樣的碰撞下,中區好像一個世界盡頭般的混沌,而創客聚落如同冷酷仙境般的烏托邦。
創客聚落:冷酷仙境
這裡所指的創客,是指那些研發創新并以此為業的狂想家們。我相信每一個成功的創客都有一種建構烏托邦的能力,就好像亨利福特在創造流水線的同時也暗示了美國文化熔爐的理想;迪士尼樂園的成立同時也作為美國經濟大蕭條背後的精神避難所。烏托邦可以製造面向未來的意義,因此格外被創客所青睞,它可以用來牽引社會大眾的心願和行動。從化纖紡織品、可口可樂、時尚產業、房地產到信息時代的互聯網公司,人們認知上所習慣的衣食住行的世界都是被創造出來的,在這個世界中,能統領社會意願者勝,因此富有想象力的商業烏托邦便扮演了引領社會風潮的重要角色。相信的人多了、久了,烏托邦就變成了現實。
世界盡頭與冷酷仙境
創客的烏托邦要以何種姿態出現在臺中市中區?面對中區和創客中心截然不同的空間氛圍,我認為這樣的衝突和矛盾不應該被弱化,反而是要突出這樣的矛盾,來強調一種介於兩個時代、兩種景觀和兩個觀念的差異性。突出這樣的差異並不是褒獎或貶低任何一方,只是試圖在保留各自個性的同時尋求交流的機會,去尋求一種中區再生的可能。基地預設與中興停車場,原本為柳川一湖面,后封蓋改為停車場至今。現基地南側有一BRT車站,西側有一社區活動空間正在使用,所以停車場附設的小公園市場有老人的小孩子活動。
一舉劈開的都市新平台
面對到這樣一個巨大的街廓,我將建築量體配置在剖面上橫向劈開,上下分別用不同造型的量體承載不同機能,中間則透過留出一個巨大的平台,為都市引入一個巨大的差異的同時,為中區帶來一個大尺度、高密度活動發生的公共空間。
上方創客中心的公共性機能和下方商場和旅店的公共性機能都放置在中間,這個空間即為創客烏托邦面對到都市的中介空間。上下兩部分,用形體和結構系統區分開來,上方用一個純粹的量體來象征新秩序的建立;下方回應中區都市紋理,用破碎分割的量體和基地四周的街道相連,因為對於中區來說,只有在街道上日常生活才是活生生的。



















































