第2回 楊瑞禎建築師紀念設計獎 參加作品編號 009
作品名稱:婚紗工坊
設計者:江中維
系所:台南應用科技大學室內設計系四年級
作品時間:2023年大三作品
指導老師:謝力齊
設計說明
台南應用科技大學以「文創大學」自詡,為因應少子化之趨勢並配合政府推動「文化創意產業」之政策,擬將目前的文創工廠一、二樓空間委外合作經營。 預定納入校區附近缺乏的「共享辦公室」跟「自造工坊」功能,成立「文創自造工坊」,提供本校與鄰近學校師生與ㄧ般民眾皆可使用的創新空間。
這次是以婚紗工坊為主題本校因為服裝設計系每次在彩排走秀時都沒有一個良好的空間場地使用所以時常在校內的空地採排,現場每次都只能零時的黏貼膠帶來當作舞台的規劃路線,所以在這次的設計中就有考慮到,加上校內的服裝設計系,展示櫃的空間沒有很大所以就算有很棒的理念也會被空間的大小而限制住,而這次設計的婚紗工坊以工業風為主軸,會走工業風的原因是因為在西方19世紀的期間,流行裙襯而目的是為了凸顯女性的翹臀提高視覺的效果, 19世紀剛好也是工業時期的興盛時間藉此來做呼應,以裙襯的線性與骨架的性質來做設計,並且與支撐鋼彈零件的支架來做發想,在基地正面東北處開設大面積的落地窗,來設置婚紗把鋼彈零間的模組之架,來成設婚紗的配件與展示,產生與外面婚紗店的差異性,並且義味著工坊的手作特點與價值。
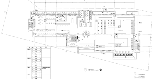
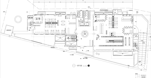
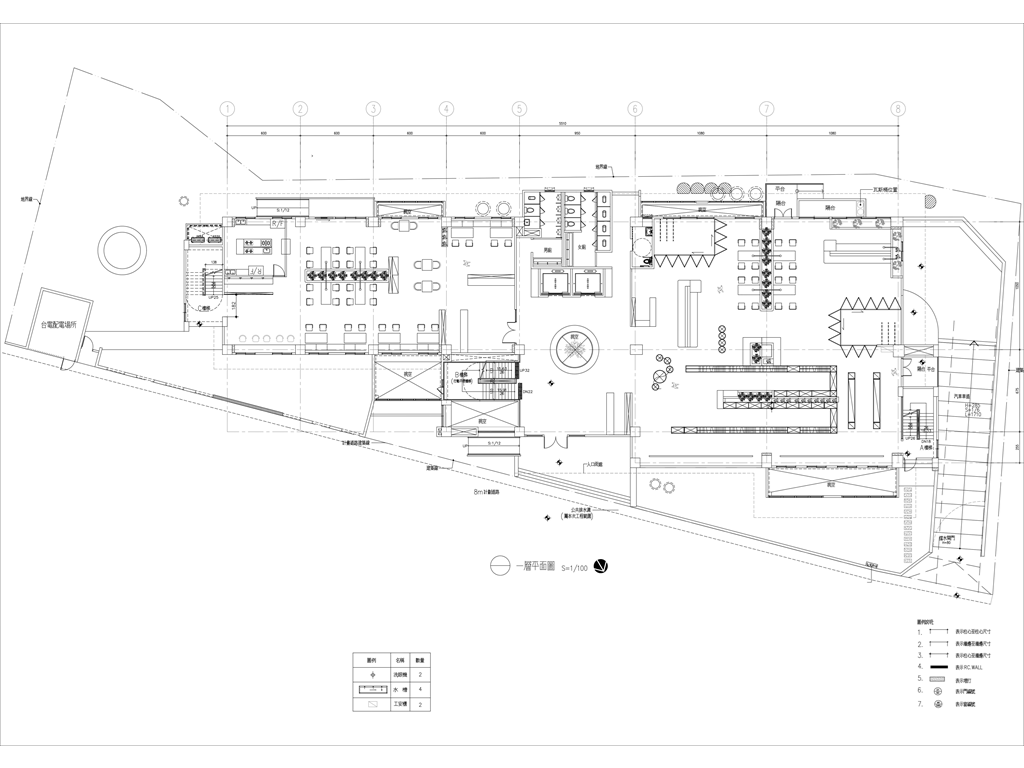
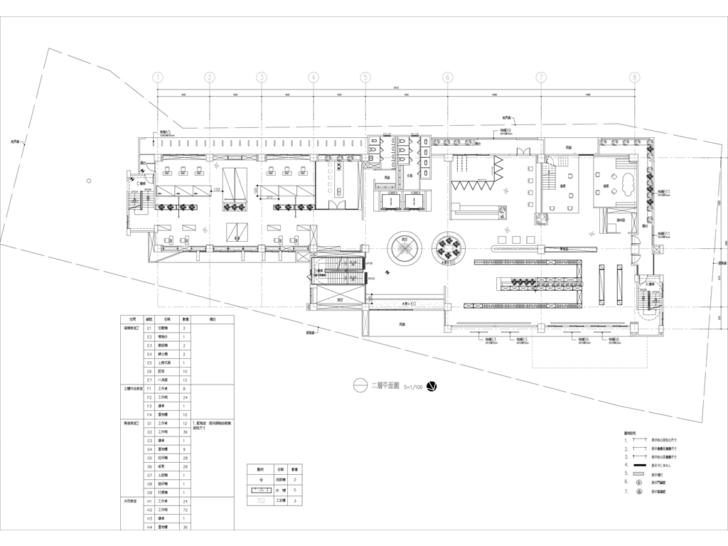
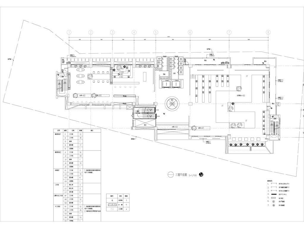
在空間的性質上可以分別四種,平面圖左側一、二樓是婚紗店一樓是女裝二樓
是男裝二樓多了一個棚拍空間,招待區與更衣間一、二樓都是有的,在來是平面圖右側的一樓是咖啡簡餐區共給來買婚紗的客人或是來參訪的大家有個用餐區,而二、三樓的右側是製作婚紗的工紡與共同的共享辦公室,平面圖三樓左側是走秀舞台區。
整體的工業風與柔美的婚紗產生很大的對比,而對比的方式可以與過往的婚紗店產生很大的不同,正常的婚紗店大家都是走豪華的風格與婚紗的柔性做搭配,而缺乏差異性,在本次的設計利用鋼彈零間的模組之架的想法來成列婚紗,立用鷹架與斑駁的木板來放置婚紗與配件,我們在挑選婚紗與配件的時候就好像是在組裝鋼彈的配件一樣,透過層層的挑選與搭配來呈現最好的自己。
作品名稱:婚紗工坊
設計者:江中維
系所:台南應用科技大學室內設計系四年級
作品時間:2023年大三作品
指導老師:謝力齊
設計說明
台南應用科技大學以「文創大學」自詡,為因應少子化之趨勢並配合政府推動「文化創意產業」之政策,擬將目前的文創工廠一、二樓空間委外合作經營。 預定納入校區附近缺乏的「共享辦公室」跟「自造工坊」功能,成立「文創自造工坊」,提供本校與鄰近學校師生與ㄧ般民眾皆可使用的創新空間。
這次是以婚紗工坊為主題本校因為服裝設計系每次在彩排走秀時都沒有一個良好的空間場地使用所以時常在校內的空地採排,現場每次都只能零時的黏貼膠帶來當作舞台的規劃路線,所以在這次的設計中就有考慮到,加上校內的服裝設計系,展示櫃的空間沒有很大所以就算有很棒的理念也會被空間的大小而限制住,而這次設計的婚紗工坊以工業風為主軸,會走工業風的原因是因為在西方19世紀的期間,流行裙襯而目的是為了凸顯女性的翹臀提高視覺的效果, 19世紀剛好也是工業時期的興盛時間藉此來做呼應,以裙襯的線性與骨架的性質來做設計,並且與支撐鋼彈零件的支架來做發想,在基地正面東北處開設大面積的落地窗,來設置婚紗把鋼彈零間的模組之架,來成設婚紗的配件與展示,產生與外面婚紗店的差異性,並且義味著工坊的手作特點與價值。
在空間的性質上可以分別四種,平面圖左側一、二樓是婚紗店一樓是女裝二樓
是男裝二樓多了一個棚拍空間,招待區與更衣間一、二樓都是有的,在來是平面圖右側的一樓是咖啡簡餐區共給來買婚紗的客人或是來參訪的大家有個用餐區,而二、三樓的右側是製作婚紗的工紡與共同的共享辦公室,平面圖三樓左側是走秀舞台區。
整體的工業風與柔美的婚紗產生很大的對比,而對比的方式可以與過往的婚紗店產生很大的不同,正常的婚紗店大家都是走豪華的風格與婚紗的柔性做搭配,而缺乏差異性,在本次的設計利用鋼彈零間的模組之架的想法來成列婚紗,立用鷹架與斑駁的木板來放置婚紗與配件,我們在挑選婚紗與配件的時候就好像是在組裝鋼彈的配件一樣,透過層層的挑選與搭配來呈現最好的自己。



























































