第2回 楊瑞禎建築師紀念設計獎 參加作品編號 014
作品名稱:中山時光機塔樓
設計者:黃棟田
系所:銘傳大學建築系大四上
作品時間:大三下學期
指導老師:陳彥豪
設計說明
中山區歷史更迭的過程不僅是都市變遷集體記憶的焦點,更是孕育了該區文化發展及承先啟後的地位。基地旁中山北路從日據時期的敕使街道、戰後蔣介石政權的國道、美軍顧問團、提供美國大兵性服務的觀光產業、條通地區的日式酒店,到民國初期的汽車材料產業聚落的打鐵商圈(赤峰街),映照著各時期殖民經驗遺留下來的都市紋理。
對於文創產業,某些文化的延續和永續發展更是一個重要任務。歷史的瞻仰能夠跨越策展文創空間的界限,成為周邊近代產業發展的基石。正因如此,這樣的空間需要滿足不同團體紛雜迴異的需求,更要讓旅人能在住宿的過程中感受中山殖民前後的地景記憶。
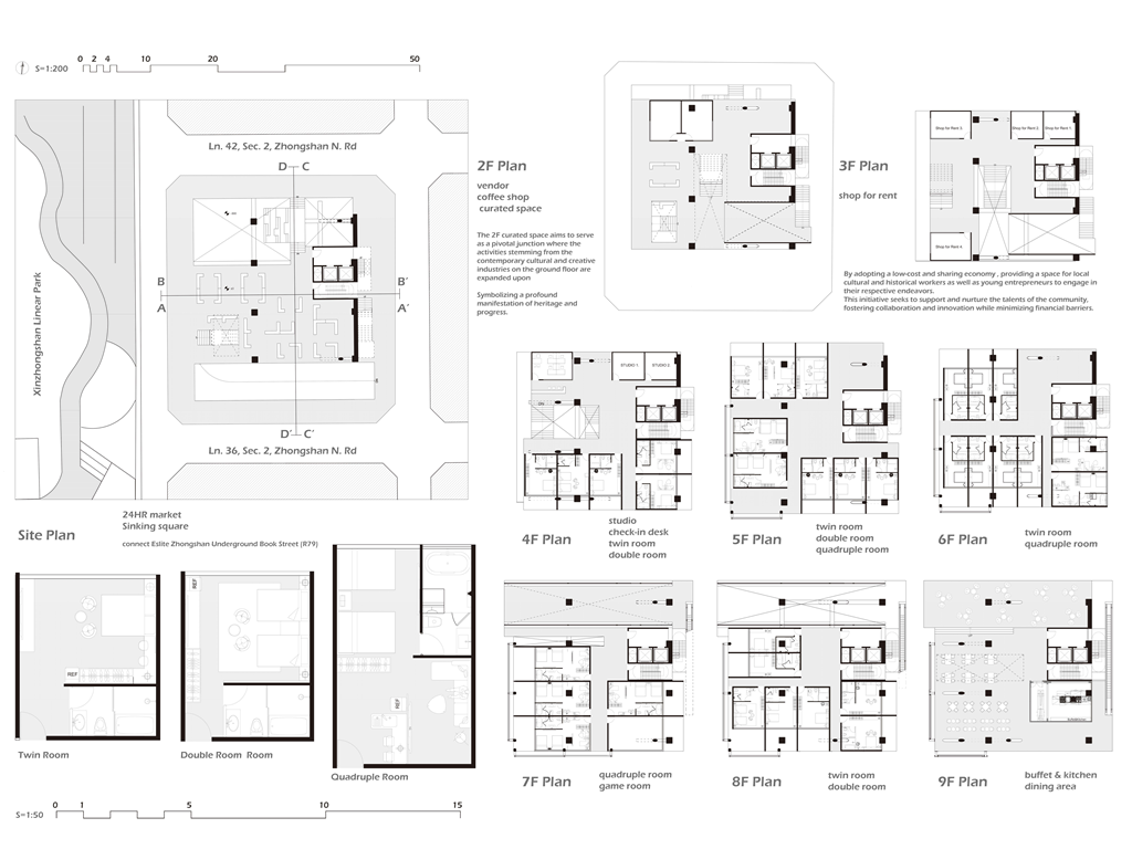
因此,我將記錄中山區歷史更迭的基地選擇在中山北路二段42巷,西側為中山線性公園,串聯捷運中山、雙連站,公園後方為赤峰商圈,為歷史悠久的條通文化背景。坐落於基地東北向為臺北市重要的南北向幹道-中山北路。
我試圖抱持著開放、靈活、具前瞻性的態度去建構出一處紀錄中山快慢、新舊之間的容器並對當代藝術策展空間提出在地性的疑問......。我利用視角框景與參觀迴路的手法,分別在2F、8F、12F置入高度四公尺以上的透明策展空間,分別對應民國時期的1972年、1957年,以及1950年美軍顧問團抵台時期。企圖利用迴路轉折的手法,從底層的當代文創活動做為起點走回頂層的歷史框景路徑,讓時光倒退回西元1916年代的中山敕使街道,並且打破傳統複合式旅宿空間的住商界限。
#文創策展複合式旅宿空間 #框景下的歷史 #旅人視角 #理想匯聚
#二元性(Duality) #中介(Intermediary)
作品名稱:中山時光機塔樓
設計者:黃棟田
系所:銘傳大學建築系大四上
作品時間:大三下學期
指導老師:陳彥豪
設計說明
中山區歷史更迭的過程不僅是都市變遷集體記憶的焦點,更是孕育了該區文化發展及承先啟後的地位。基地旁中山北路從日據時期的敕使街道、戰後蔣介石政權的國道、美軍顧問團、提供美國大兵性服務的觀光產業、條通地區的日式酒店,到民國初期的汽車材料產業聚落的打鐵商圈(赤峰街),映照著各時期殖民經驗遺留下來的都市紋理。
對於文創產業,某些文化的延續和永續發展更是一個重要任務。歷史的瞻仰能夠跨越策展文創空間的界限,成為周邊近代產業發展的基石。正因如此,這樣的空間需要滿足不同團體紛雜迴異的需求,更要讓旅人能在住宿的過程中感受中山殖民前後的地景記憶。
因此,我將記錄中山區歷史更迭的基地選擇在中山北路二段42巷,西側為中山線性公園,串聯捷運中山、雙連站,公園後方為赤峰商圈,為歷史悠久的條通文化背景。坐落於基地東北向為臺北市重要的南北向幹道-中山北路。
我試圖抱持著開放、靈活、具前瞻性的態度去建構出一處紀錄中山快慢、新舊之間的容器並對當代藝術策展空間提出在地性的疑問......。我利用視角框景與參觀迴路的手法,分別在2F、8F、12F置入高度四公尺以上的透明策展空間,分別對應民國時期的1972年、1957年,以及1950年美軍顧問團抵台時期。企圖利用迴路轉折的手法,從底層的當代文創活動做為起點走回頂層的歷史框景路徑,讓時光倒退回西元1916年代的中山敕使街道,並且打破傳統複合式旅宿空間的住商界限。
#文創策展複合式旅宿空間 #框景下的歷史 #旅人視角 #理想匯聚
#二元性(Duality) #中介(Intermediary)































































