第2回 楊瑞禎建築師紀念設計獎 參加作品編號 025
作品名稱:【溶,融】:族群、世代混居的交會與融合
設計者:黃柏森、王聿雅
系所:國立成功大學建築系四年級
作品時間:2023年 4月 至 6月
指導老師:陳品蓁
基本資訊
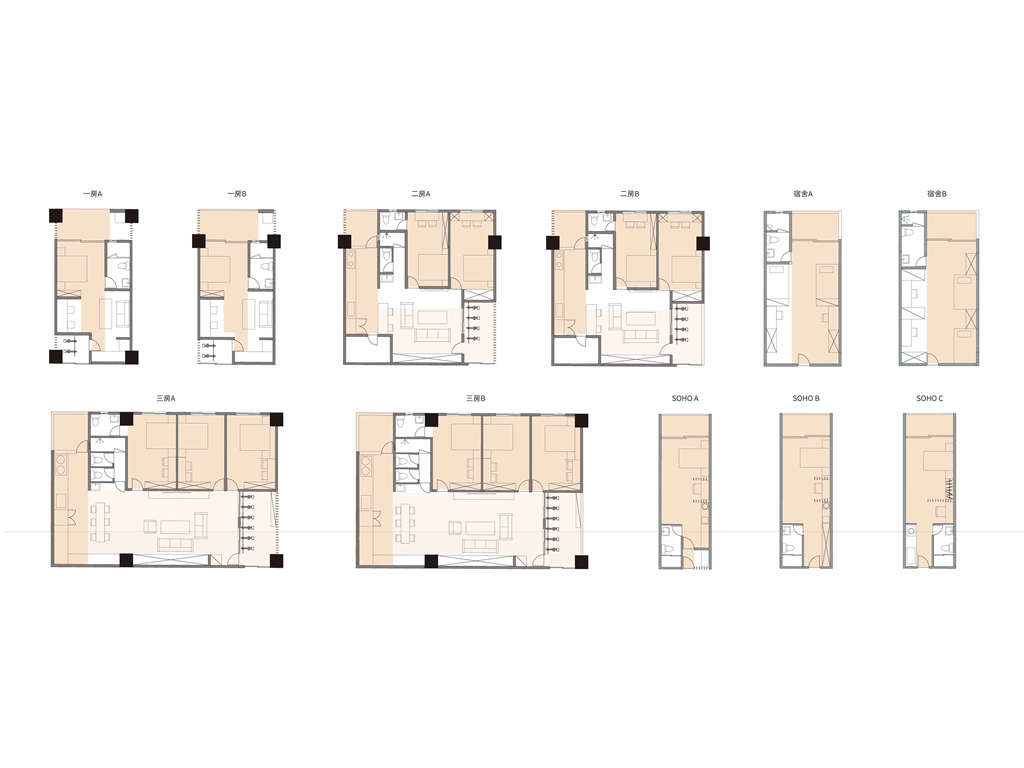
計畫名稱:都市混居空間(社會住宅+教職員工與學生宿舍+1)
基地面積:27911㎡
基地位置:台南市北區,北鄰公園南路、西鄰西華街、東鄰北門路二段、南鄰北忠街
建蔽面積:8395㎡ (32%)
總樓地板面積:54916㎡ (202%)
最低總樓地板要求:50000㎡
最高總樓地板限制:83624㎡
樓層高度:地下一層,地上二至十層不等
概念說明
【水的置入】
社會住宅不只是以較低價格在都市中居住的手段,應該提供相應策略,幫助居民在社會上站穩腳步。為了生活打拼的人們在這裡交會,如同古時候人們傍水而居、依靠水帶來的豐饒,讓社會住宅成為水一般的存在。
台南公園的水可看而不可及,我們希望生活中能有淺而定期清掃的水景,既能接觸也能觀賞。在水景及二樓平台的形體規劃中我們使用從水的聯想裡提取的形式如線性切割及視線穿透。
【公共空間的串聯】
除了地面層置入水景,在住居空間中混合交流空間,透過光線和人的交會與流動去稀釋都市的擁擠,追求心靈的動態平衡。為此,在住宅的房型間置入階梯狀的共享客廳,光線延續的同時,保有公共空間的連續性。
從底層播放電影的多媒體空間、桌撞球間、沙發或圓桌交誼區、簡易廚房和共食空間到最頂層的都市農園,依對光照的需求及動態靜態區分,並以垂直動線作為活動之間的過渡。
宿舍中的公共空間在立面上呈現隨機的開口分布,以兩層為單位,下層交誼空間,上層則是挑空,寬度較窄的則是洗曬衣空間。
【基座的生活機能】
鄰近公園出入口處,一樓為餐飲空間,二樓為健身房;基地西側屬於健康照護機能,一樓有診所、藥局、樂齡中心,二樓為幼兒園及親子餐廳。基地正中央被富北街分隔的兩棟樓基座皆屬於社區公共機能,包括講堂、圖書空間、包裹收發、美術教室等。北門路側為出租商業空間,北忠街側是超市以及宿舍棟一二層的共享工作空間。
就業輔導所是我們在社會住宅裡置入的「生存策略」,包含商業空間的出租、作為培訓場地的專業教室、針對藝術工作者的工作場域及藝廊,是輔導居民就業的一系列配套措施。
作品名稱:【溶,融】:族群、世代混居的交會與融合
設計者:黃柏森、王聿雅
系所:國立成功大學建築系四年級
作品時間:2023年 4月 至 6月
指導老師:陳品蓁
基本資訊
計畫名稱:都市混居空間(社會住宅+教職員工與學生宿舍+1)
基地面積:27911㎡
基地位置:台南市北區,北鄰公園南路、西鄰西華街、東鄰北門路二段、南鄰北忠街
建蔽面積:8395㎡ (32%)
總樓地板面積:54916㎡ (202%)
最低總樓地板要求:50000㎡
最高總樓地板限制:83624㎡
樓層高度:地下一層,地上二至十層不等
概念說明
【水的置入】
社會住宅不只是以較低價格在都市中居住的手段,應該提供相應策略,幫助居民在社會上站穩腳步。為了生活打拼的人們在這裡交會,如同古時候人們傍水而居、依靠水帶來的豐饒,讓社會住宅成為水一般的存在。
台南公園的水可看而不可及,我們希望生活中能有淺而定期清掃的水景,既能接觸也能觀賞。在水景及二樓平台的形體規劃中我們使用從水的聯想裡提取的形式如線性切割及視線穿透。
【公共空間的串聯】
除了地面層置入水景,在住居空間中混合交流空間,透過光線和人的交會與流動去稀釋都市的擁擠,追求心靈的動態平衡。為此,在住宅的房型間置入階梯狀的共享客廳,光線延續的同時,保有公共空間的連續性。
從底層播放電影的多媒體空間、桌撞球間、沙發或圓桌交誼區、簡易廚房和共食空間到最頂層的都市農園,依對光照的需求及動態靜態區分,並以垂直動線作為活動之間的過渡。
宿舍中的公共空間在立面上呈現隨機的開口分布,以兩層為單位,下層交誼空間,上層則是挑空,寬度較窄的則是洗曬衣空間。
【基座的生活機能】
鄰近公園出入口處,一樓為餐飲空間,二樓為健身房;基地西側屬於健康照護機能,一樓有診所、藥局、樂齡中心,二樓為幼兒園及親子餐廳。基地正中央被富北街分隔的兩棟樓基座皆屬於社區公共機能,包括講堂、圖書空間、包裹收發、美術教室等。北門路側為出租商業空間,北忠街側是超市以及宿舍棟一二層的共享工作空間。
就業輔導所是我們在社會住宅裡置入的「生存策略」,包含商業空間的出租、作為培訓場地的專業教室、針對藝術工作者的工作場域及藝廊,是輔導居民就業的一系列配套措施。



























































