第2回 楊瑞禎建築師紀念設計獎 參加作品編號 027
作品名稱:作品3題
設計者:梁允菁
系所:輔仁大學內設計學士學位學程大四
作品時間:大三
指導老師:林裕峰、張意、蔡林安
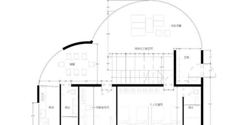
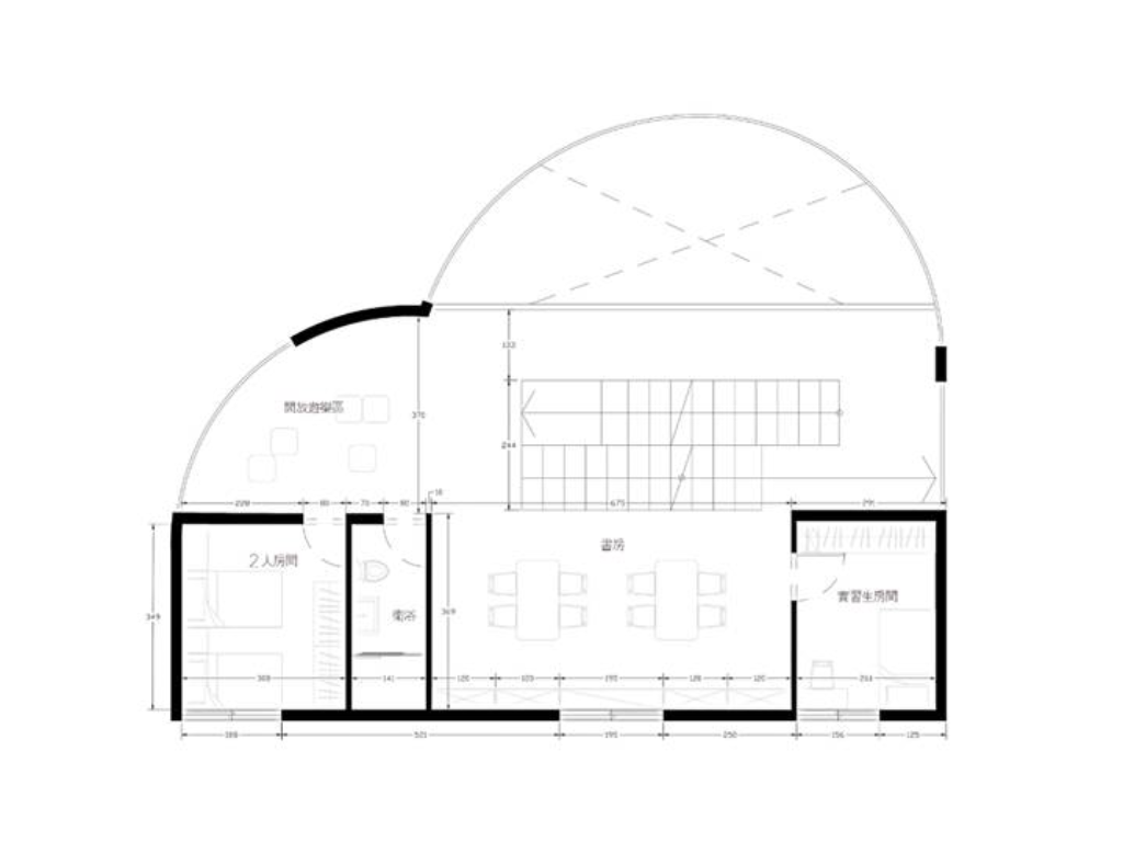
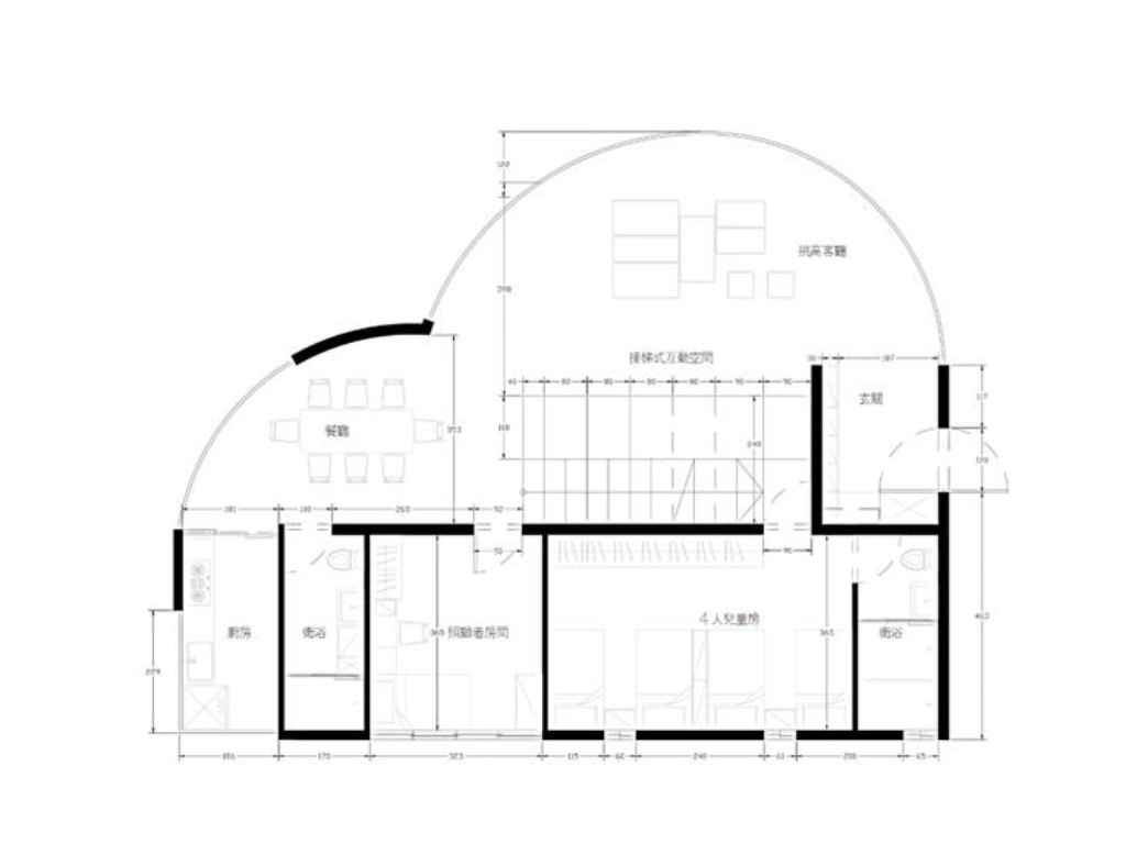
作品(一) KAKURETA隱
作品時間:2023大三下學期(專題設計期中)
指導老師:林裕峰
設計說明
生命的盡頭是一場無法預知的歸隱,當我不再像年輕氣盛、血氣方剛,也沒有了少女的青春悸動。
回顧人生卻依舊有那讓人震撼且難以忘懷的瞬間,儘管我的生活枯燥乏味,且令人躁動不安但我仍然無法停止的向前的腳步直到我成為了”大人”,但大人是什麼樣子?
字典上對於大人的解釋是思想及態度成熟的人,現實上正真的大人是那些思想僵硬態度強硬的人。
作品(二) 這個XX無聊的世界不能沒有OO的存在
作品時間:2023大三下學期(室內設計四期末)
指導老師:張意
設計說明
我10歲的夢想是可以回到過去改變世界,15歲時我的夢想退而求其次變成了一個偉大的設計師,在我20歲時我的夢想卻變成了要賺很多錢。
我很思考了很多,發現我從一個天馬行空且大膽的孩子變成了一個膽小不敢求變的準畢業生?既然如此我為何不打破這死板生硬的規則跳脫烏托邦去創造我的伊甸園然後成為自己的亞當與夏娃。
作品(三) 文學家之死_芥川龍之介
作品時間:2023大三下學期(專題設計期末)
指導老師:蔡林安
設計說明
不是悲慟,僅僅是感嘆。不是後悔,僅僅是遺憾。
終有一天,死亡會向我敞開大門,面對死亡時,我才會停止對世界的憂慮和擔心,從陷落中孤立出自己,成為真正的存在。
物哀是特別屬於日本的美──當櫻花落下時,我們感覺到美,我們便讚嘆;同時我們也體會到逝去與死亡,於是傷感亦油然而生。
藝術有不只一種表現形態,可以是直白的淺顯易懂的,也可以是富含隱喻晦澀不明的,更可以是直擊靈魂的震撼與淒美。
如同被論一般的矛盾才是符合世間萬物的軌跡。
作品名稱:作品3題
設計者:梁允菁
系所:輔仁大學內設計學士學位學程大四
作品時間:大三
指導老師:林裕峰、張意、蔡林安
作品(一) KAKURETA隱
作品時間:2023大三下學期(專題設計期中)
指導老師:林裕峰
設計說明
生命的盡頭是一場無法預知的歸隱,當我不再像年輕氣盛、血氣方剛,也沒有了少女的青春悸動。
回顧人生卻依舊有那讓人震撼且難以忘懷的瞬間,儘管我的生活枯燥乏味,且令人躁動不安但我仍然無法停止的向前的腳步直到我成為了”大人”,但大人是什麼樣子?
字典上對於大人的解釋是思想及態度成熟的人,現實上正真的大人是那些思想僵硬態度強硬的人。
作品(二) 這個XX無聊的世界不能沒有OO的存在
作品時間:2023大三下學期(室內設計四期末)
指導老師:張意
設計說明
我10歲的夢想是可以回到過去改變世界,15歲時我的夢想退而求其次變成了一個偉大的設計師,在我20歲時我的夢想卻變成了要賺很多錢。
我很思考了很多,發現我從一個天馬行空且大膽的孩子變成了一個膽小不敢求變的準畢業生?既然如此我為何不打破這死板生硬的規則跳脫烏托邦去創造我的伊甸園然後成為自己的亞當與夏娃。
作品(三) 文學家之死_芥川龍之介
作品時間:2023大三下學期(專題設計期末)
指導老師:蔡林安
設計說明
不是悲慟,僅僅是感嘆。不是後悔,僅僅是遺憾。
終有一天,死亡會向我敞開大門,面對死亡時,我才會停止對世界的憂慮和擔心,從陷落中孤立出自己,成為真正的存在。
物哀是特別屬於日本的美──當櫻花落下時,我們感覺到美,我們便讚嘆;同時我們也體會到逝去與死亡,於是傷感亦油然而生。
藝術有不只一種表現形態,可以是直白的淺顯易懂的,也可以是富含隱喻晦澀不明的,更可以是直擊靈魂的震撼與淒美。
如同被論一般的矛盾才是符合世間萬物的軌跡。











































