第2回 楊瑞禎建築師紀念設計獎 參加作品編號 029
作品名稱:唯創工作室(聯大建築系館修煉所改造)
設計者:林羿妡
系所:國立聯合大學三年級
作品時間:2023/11/02
指導老師:林妝鴻
設計說明
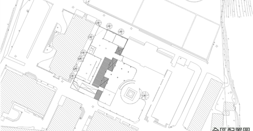
這座建築的設計理念旨在打破傳統的學術空間框架,創造一個開放、充滿活力且促進跨學科交流的環境。二樓的大露台是這一理念的核心,特別考慮到工設系以及其他系所的同學,旨在成為一個集聚、互動和創造的場所。
這個大露台的特點之一是其多功能性。這裡不僅僅是一個供人休憩的地方,更是一個開展各種活動的理想場地。考慮到工設系的需求,露台的設計應包括靈活的布局和空間,以容納不同類型的活動,如展覽、講座、社交聚會等。同時,植入適當的綠化和休息區,為人們提供一個舒適的環境,使他們更有動力參與社區活動。
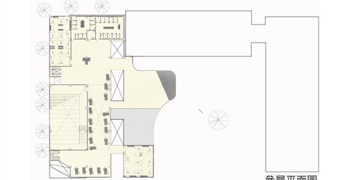
室內空間的開放性設計也是這個建築的一大特點。大挑空的結構既提供了通風良好的環境,同時也強調了自然光的重要性。這樣的設計不僅為室內空間帶來了明亮的氛圍,同時也為學術和社交活動提供了一個開放、自由的空間。透過可移動的隔間和家具,這個空間可以輕松地適應不同的需求,提供一個靈活且動態的環境。
中間走道的設計是連接全家部分的重要元素。這裡選擇使用大面積的玻璃,旨在打破下層空間的壓迫感,讓陽光自由灑進走道中。這樣的設計使得穿越此處的人們感受到自然的光線,同時不受到任何局促感。這樣的走道除了作為連接各層的通道外,同時也成為一個可以欣賞建築內部風貌的場所,將光影的美妙呈現給所有路過的人。
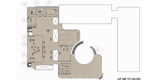
在一樓,展覽區的設計是吸引人的焦點。這裡不僅提供了展示建築系作品的空間,同時也通過嵌入式照明和多媒體展示技術,將這些作品呈現得淋漓盡致。設置清晰的信息牌和數位螢幕,使路過的人們更容易理解並欣賞建築系的創意和專業。
整體而言,這座建築的設計不僅關注功能性,更著眼於社交性、開放性和可持續性。通過二樓大露台的多功能性、室內空間的開放設計、中間走道的採光設計和一樓展覽區的突出,這個建築成為了一個鼓勵社區互動和學科合作的據點。
作品名稱:唯創工作室(聯大建築系館修煉所改造)
設計者:林羿妡
系所:國立聯合大學三年級
作品時間:2023/11/02
指導老師:林妝鴻
設計說明
這座建築的設計理念旨在打破傳統的學術空間框架,創造一個開放、充滿活力且促進跨學科交流的環境。二樓的大露台是這一理念的核心,特別考慮到工設系以及其他系所的同學,旨在成為一個集聚、互動和創造的場所。
這個大露台的特點之一是其多功能性。這裡不僅僅是一個供人休憩的地方,更是一個開展各種活動的理想場地。考慮到工設系的需求,露台的設計應包括靈活的布局和空間,以容納不同類型的活動,如展覽、講座、社交聚會等。同時,植入適當的綠化和休息區,為人們提供一個舒適的環境,使他們更有動力參與社區活動。
室內空間的開放性設計也是這個建築的一大特點。大挑空的結構既提供了通風良好的環境,同時也強調了自然光的重要性。這樣的設計不僅為室內空間帶來了明亮的氛圍,同時也為學術和社交活動提供了一個開放、自由的空間。透過可移動的隔間和家具,這個空間可以輕松地適應不同的需求,提供一個靈活且動態的環境。
中間走道的設計是連接全家部分的重要元素。這裡選擇使用大面積的玻璃,旨在打破下層空間的壓迫感,讓陽光自由灑進走道中。這樣的設計使得穿越此處的人們感受到自然的光線,同時不受到任何局促感。這樣的走道除了作為連接各層的通道外,同時也成為一個可以欣賞建築內部風貌的場所,將光影的美妙呈現給所有路過的人。
在一樓,展覽區的設計是吸引人的焦點。這裡不僅提供了展示建築系作品的空間,同時也通過嵌入式照明和多媒體展示技術,將這些作品呈現得淋漓盡致。設置清晰的信息牌和數位螢幕,使路過的人們更容易理解並欣賞建築系的創意和專業。
整體而言,這座建築的設計不僅關注功能性,更著眼於社交性、開放性和可持續性。通過二樓大露台的多功能性、室內空間的開放設計、中間走道的採光設計和一樓展覽區的突出,這個建築成為了一個鼓勵社區互動和學科合作的據點。













































































