第2回 楊瑞禎建築師紀念設計獎 參加作品編號 036
作品名稱:SUPERBLOCK
設計者:陳明華、許盈喬
系所:成功大學建築系四年級
作品時間:2023/06/13
指導老師:楊詩宏
設計說明
設計主軸與目標
此次設計的主題是在一塊占地約2.6公頃的基地中進行社會住宅設計,基地位於台南火車站前站圓環北側,北門路與公園南路交叉口,有交通與高商業價值的優勢,同時面對現地的東南亞族群生活圈與其豐富的歷史背景,我們對於社宅議題提出新的構想、據基地條件在垂直向度打造公共與商業空間,並提出藉由模矩化的住宅單元來面對現今與未來的不同居住群體。
SOCIAL HOUSING _ 50年計畫
台灣的社會住宅政策著重自償,因此無法將租金壓低直接幫助最需要的人群,為此我們提出為期50年的實驗性社會住宅,藉由嚴格的租戶條件篩選,並以10年為單位觀察社會住宅服務對象的適應情況,進而去探討社會住宅真正適合的族群,同時配合其他空間上的方案去更加符合服務對象。
同時我們以單元著手,從46種單元研究中篩選出12種單元形式,探討面對未來住房單元的新可能,並提出「給足面積卻不蓋滿」的策略——最初每個單元都將以最經濟的空間型態存在,佔地小、建造成本低,可以有效反映在相較低廉的租金上,同時每個單元的自由度將會提升,居住者可以在自己有限的範圍中選擇擴張居住空間的形式。
框架FRAME&加蓋MECHANISM
框架尺寸的設計旨在創造一個極為模組化且可以靈活利用的空間。 整個設計皆採用了大小兩種尺寸的框架。 大尺寸框架(1080cm*1080cm)和小尺寸框架(540cm*540cm)可以同時使用,創造出不同品質與彈性的空間。
框架不僅有助於我們設計不同的房型,同時更與加蓋區互相配合,我們在框架中以留白來提供居住者依照自身空間需求與喜好自由安排空間,無論是夫妻增加一個臥房來迎接新生命,抑或是SOHO族增建工作室或書房,這些加蓋區無疑為社宅增添了生命與活力。
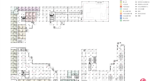
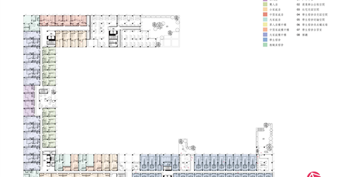
模矩化MODULARIZATION
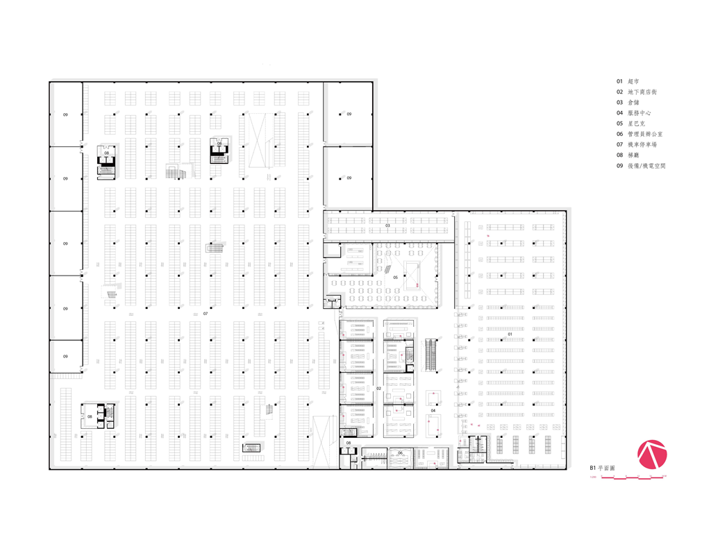
模組化在空間運用與配置上具有無限可能,它們既可以獨立亦可以互相依附,甚至可以堆疊、延展,獨特的模組化空間使我們的設計如同積木般新穎、有趣。從住房單元、小型商店、餐飲、中型零售店甚至地下停車場,這一切都將透過框架在我們的設計中實現。









































